Découvrez dans un environnement privilégié, à deux pas de toutes les commodités, cet appartement unique en attique, situé au dernier étage d'une résidence contemporaine de standing.
Baigné de lumière grâce à sa triple exposition, ce bien d'exception déploie des volumes élégants et fonctionnels.
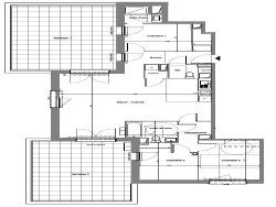
Il se compose d'une entrée, cellier, vaste séjour / cuisine, espace nuit comprenant une suite parentale, deux chambres avec placards intégrés, une salle de bain élégante avec WC, ainsi qu'un WC indépendant. La pièce de vie s'ouvre sur deux terrasses panoramiques sans vis-à-vis, véritables espaces à ciel ouvert, où l'on profite d'une intimité rare et d'une atmosphère apaisée.
Deux stationnements privatifs, dont un couvert, viennent parfaire les prestations de ce bien d'exception.
Un appartement singulier, conjuguant confort, raffinement et adresse idéale, pour une qualité de vie incomparable au coeur de Talence.
Honoraires à la charge du vendeur. Dans une copropriété de 26 lots. Aucune procédure n'est en cours. DPE en cours. Les informations sur les risques auxquels ce bien est exposé sont disponibles sur le site Géorisques : georisques.gouv.fr.