VOTRE CABINET MEDICALA DEUX PAS DES QUAIS DE GARONNE
Idéalement implantée à Bordeaux à proximité immédiate de la place Stalingrad, cette maison médicale à taille humaine prend place au coeur d'un secteur en pleine effervescence. Ce lieu de santé contemporain se distingue par une architecture élégante et une conception tournée vers le bien-être des professionnels. Espaces baignés de lumière naturelle, organisation fonctionnelle et ambiance sereine favorisent une pratique médicale collaborative et moderne.
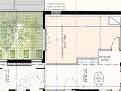
C'est dans ce cadre professionnel optimal que s'inscrit votre nouveau cabinet de de 22m2 avec son point d'eau. Notez que vous êtes propriétaire d'une partie proportionnelle des parties communes pour un total de 39m2.
Pensé pour répondre aux exigences du quotidien, l'ensemble propose des équipements de qualité : un ascenseur adapté au transport de patients allongés, une maîtrise des charges grâce à un système de chauffage par pompe à chaleur associé à des panneaux solaires, une ventilation optimisée garantissant un renouvellement d'air constant pour chaque occupant, ainsi qu'un haut niveau d'isolation acoustique entre les cabinets pour préserver la confidentialité.
Cerise sur le gâteau : un espace partagé niché au dernier niveau, avec terrasse panoramique de 43 m² ouverte sur la ville, cuisine et salle de repos. Ce rooftop, réservé aux praticiens, offre un cadre privilégié pour se détendre, échanger ou simplement profiter d'un moment de calme entre deux consultations.
- Prix HT : 160 000 - Prix TTC : 192 000 - Frais de Notaires Réduits - Garanties - ...
VOTRE CABINET MEDICALA DEUX PAS DES QUAIS DE GARONNE
Honoraires à la charge du vendeur. Dans une copropriété de 19 lots. Aucune procédure n'est en cours. DPE en cours. Les informations sur les risques auxquels ce bien est exposé sont disponibles sur le site Géorisques : georisques.gouv.fr.
39 m²
4 103 €
2 sur 4
2025
Oui
Oui (19 lots)
Contact Jean-Guillaume ROCHE
Contacter gratuitement à l'aide du formulaire ci-dessous.