? Dernières disponibilités Appartements T2 avec terrasse, jardin et parkings II reste actuellement deux appartements 2 pièces encore disponibles à la vente.
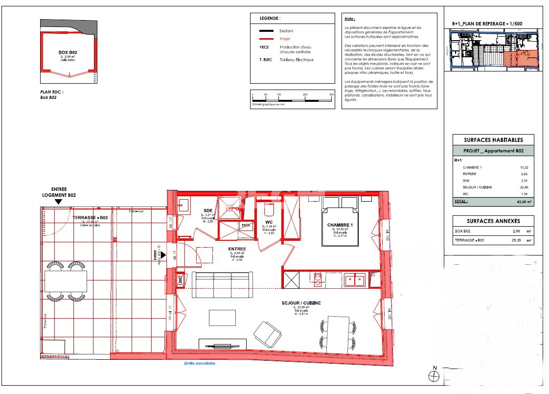
- Le premier appartement, de 45,52 m², est situé au rez-de-chaussée. Il bénéficie d'une terrasse de 7,22 m², d'un jardin privatif de 20 m², d'une orientation nord-est et de deux parkings. Prix : 182 000
- Le second appartement, de 48,36 m², est également au rez-de-chaussée. Il dispose d'une terrasse de 5,83 m² et d'un grand jardin d'environ 80 m², orienté sud-ouest, offrant un bel ensoleillement. Prix : 199 000
Un emplacement idéal, à seulement 1,5 km du centre-ville au sud de Dax : proche des commodités tout en restant au calme. Rejoignez le marché de plein air, le supermarché ou le centre-ville en 10 minutes à vélo ou via les lignes de bus. Profitez des espaces verts à proximité : lacs, forêts et le bois de Seyresse à quelques minutes à pied. À moins de 45 minutes des plages de la côte landaise. ? Une résidence pensée pour votre bien-être Villa Serena s'inscrit dans l'architecture locale : Enduit clair, toiture traditionnelle, garde-corps en bois Coeur d'îlot paysager soigné, respectueux de la biodiversité Cheminements piétons, mobilier urbain, hôtels à insectes et multiples essences végétales ? Contactez moi afin d'étudier ensemble votre projet immobilier. Je pourrai ainsi vous transmettre les plans des lots encore disponibles ainsi que la plaquette commerciale complète du programme.
Honoraires à la charge du vendeur. Dans une copropriété de 53 lots. Aucune procédure n'est en cours. Non soumis au DPE. Les informations sur les risques auxquels ce bien est exposé sont disponibles sur le site Géorisques : georisques.gouv.fr.
Votre conseiller ADRIA Immobilier : Jessica DESOGUS (Entreprise) Agent commercial (Entreprise individuelle) RSAC 833 499 494 RCP 157006917U001. *Tous les conseillers* ADRIA Immobilier sont des agents commerciaux indépendants de la SAS Adria Immobilier et Finance SA, immatriculée au RSAC (sans détention de fonds) titulaire de la carte de démarchage immobilier pour le compte de la société Adria Immobilier et Finance SAS.
45.13 m²
4 033 €
22 m²
2
1
1
1
2026
Est
Nord
2
1
Oui (53 lots)
Contact Jessica DESOGUS
Contacter gratuitement à l'aide du formulaire ci-dessous.