TERRASSE, JARDIN, PARKING ET TOUT LE CONFORT MODERNE AU TAILLAN
Située au Taillan-Médoc, la résidence prend place dans une commune qui séduit par son équilibre entre dynamisme urbain et douceur de vivre. Aux portes de la métropole bordelaise, la ville bénéficie d'un accès direct à Bordeaux grâce à un réseau de transports en commun efficace. Elle offre également un accès privilégié au parc naturel régional du Médoc, véritable écrin de nature abritant de vastes forêts, des lacs, des plages océanes et les grands domaines viticoles qui font la renommée de la région. Implantée dans un véritable espace boisé, votre résidence se trouve à quelques minutes en voiture du centre-ville, de ses commerces, de ses écoles et de ses complexes sportifs, mais également à proximité des transports en commun. Une situation idéale pour vous et votre famille.
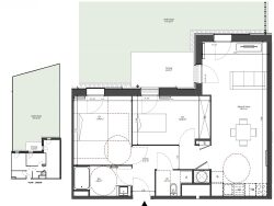
Bienvenue dans votre nouvel appartement 3 pièces de 63 m². Dès l'entrée, vous découvrez le coin nuit et ses deux agréables chambres, toutes deux ouvertes sur le jardin. Une salle d'eau moderne et un WC indépendant avec raccordement pour votre lave-linge complètent cet espace. Vous arrivez ensuite au coeur de votre appartement : une grande pièce de vie de 30 m² qui se prolonge sur une terrasse et un jardin de plus de 160 m², des espaces idéaux pour vos moments de convivialité en famille comme entre amis.
De plus, ce bien est certifié RE 2020. Vous bénéficiez donc de garanties en termes de confort phonique mais surtout d'efficacité énergétique. Ici, profitez de charges minimales tout au long de l'année.
Enfin, une place de parking complète ce bien (en sus : 15 000 ), qui n'attend plus que vous pour profiter de la douceur de vivre au Taillan-Médoc.
- Aucun travaux à prévoir - Frais de notaire réduits - Garanties - RE 2020 - Disponible Rapidement - ...
TERRASSE, JARDIN, PARKING ET TOUT LE CONFORT MODERNE AU TAILLAN
Honoraires à la charge du vendeur. Dans une copropriété de 25 lots. Aucune procédure n'est en cours. DPE en cours. Les informations sur les risques auxquels ce bien est exposé sont disponibles sur le site Géorisques : georisques.gouv.fr.