T3 LUMINEUX AVEC DOUBLE EXTÉRIEUR DERNIER ÉTAGE AU CALME, À DEUX PAS DES QUAIS
Situé à Bordeaux, à proximité immédiate des commerces, transports et des quais, découvrez ce superbe appartement 3 pièces situé au 4? étage, offrant un cadre de vie privilégié, à la fois central et parfaitement au calme.
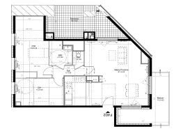
Dès l'entrée, vous accédez à une remarquable pièce de vie de 42 m², réunissant séjour et cuisine dans un espace ouvert, fluide et contemporain. Baignée de lumière du matin au soir grâce à ses larges ouvertures, cette pièce développe une atmosphère chaleureuse et particulièrement agréable à vivre au quotidien. L'espace nuit, bien distinct, propose deux chambres aux volumes confortables de 14 m², permettant d'accueillir une famille ou d'aménager un bureau selon vos besoins. Une salle d'eau et un WC indépendant complètent l'ensemble avec cohérence.
Côté extérieur, l'appartement bénéficie d'un véritable atout rare en coeur de ville : une terrasse de 17 m² ainsi qu'un balcon de 13 m², représentant près de 30 m² d'espaces extérieurs. De véritables prolongements de la pièce de vie, idéals pour recevoir, se détendre ou profiter pleinement des beaux jours en toute tranquillité.
Une place de parking complète le logement.
Un bien lumineux, au calme total, conjuguant volumes généreux, double extérieur et emplacement stratégique à deux pas des quais de Bordeaux.
Honoraires à la charge du vendeur. Dans une copropriété de 79 lots. Aucune procédure n'est en cours. Non soumis au DPE. Les informations sur les risques auxquels ce bien est exposé sont disponibles sur le site Géorisques : georisques.gouv.fr.
78 m²
5 077 €
3
2
1
1 (séparé)
4 sur 5
1
Oui
Oui
Oui (79 lots)
Contact Mathieu AUBERT
Contacter gratuitement à l'aide du formulaire ci-dessous.