APPARTEMENT LUMINEUX AVEC LOGGIA ET HAUTEUR SOUS PLAFOND REMARQUABLE À DEUX PAS DES QUAIS
À Bordeaux, à proximité immédiate des quais, des commerces et de toutes les commodités, découvrez ce charmant appartement 2 pièces offrant un cadre de vie particulièrement agréable, alliant calme absolu et emplacement central.
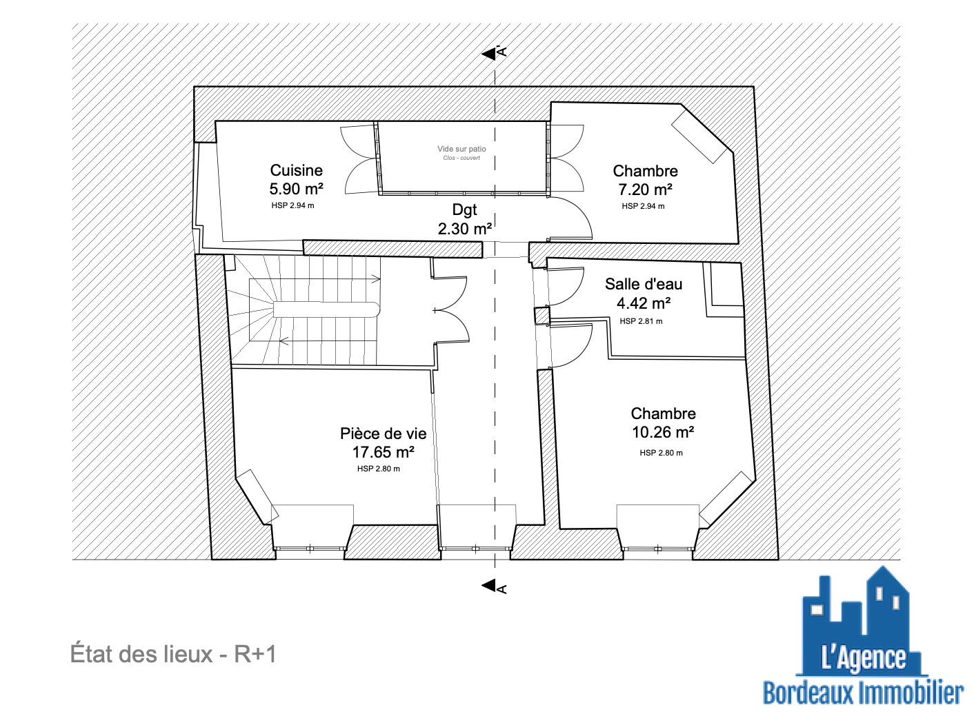
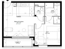
Dès l'entrée, l'appartement s'ouvre sur une belle pièce de vie de 27 m², réunissant séjour et cuisine ouverte dans un espace fluide et convivial. Baignée de lumière naturelle grâce à ses larges ouvertures, cette pièce bénéficie en outre d'une hauteur sous plafond remarquable de 3,7m, apportant volume et caractère à l'ensemble. Le séjour se prolonge naturellement par une terrasse de 6 m², véritable espace extérieur abrité, idéal pour profiter d'un coin détente ou d'un espace repas en toute tranquillité, sans aucun vis-à-vis. Côté nuit, l'appartement propose une spacieuse chambre de 16 m², offrant un volume confortable et une atmosphère paisible. Une salle d'eau ainsi qu'un WC indépendant complètent l'agencement de manière fonctionnelle.
L'ensemble se distingue par sa luminosité, ses volumes et son calme absolu, des caractéristiques rares.
Honoraires à la charge du vendeur. Dans une copropriété de 79 lots. Aucune procédure n'est en cours. Non soumis au DPE. Les informations sur les risques auxquels ce bien est exposé sont disponibles sur le site Géorisques : georisques.gouv.fr.
48.5 m²
4 866 €
2
1
1
1 (séparé)
Sud
Ouest
Oui
Oui
Oui (79 lots)
Contact Mathieu AUBERT
Contacter gratuitement à l'aide du formulaire ci-dessous.