Votre maison 2 à 4 chambres bien située pour investir sereinement
Ligné 44850
0
Construire et faire évoluer votre maison, vous en rêvez ?
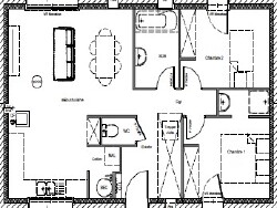
Celle-ci vous offre 2 chambres en rez-de-chaussée, un salon séjour ouvert sur la cuisine, une salle de bain, un wc, un cellier et un garage, ainsi que des combles aménageables pour créer deux autres chambres.
Hors foncier, sous réserve de disponibilité terrain. Photos non contractuelles, frais annexes et construction Creatik Solution incluse à partir de plans sur mesure donc tout est adaptable selon le terrain et votre budget.
Réalisez des économies d'énergie grâce à nos constructions RE2020 en prêt à finir !
Nous vous accompagnons de la validation du terrain à la remise des clés.
Vous souhaitez calculer votre budget ?
81 m²
1 757 €
26 m²
330 m²
3
2
Contact ANCENIS CREATIK SOLUTION
Contacter gratuitement à l'aide du formulaire ci-dessous.