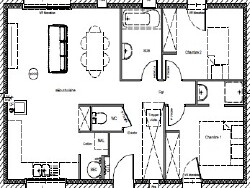
Sur une parcelle constructible d'environ 600m² à 20minutes de Nort Sur Erdre, cette maison Creatik Solution, vous permet de disposer dans un premier temps d'une chambre et une suite parentale, un salon séjour ouvert sur la cuisine de plus de 36m², une salle de bain et un WC au rez-de-chaussée.
Un WC et deux autres chambres peuvent être envisagées dans un second temps à l'étage grâce aux combles aménageables.
Tous nos plans sont réalisés sur mesure et peuvent donc s'adapter à vos envies ! Photos non contractuelles.
Cette offre est en TOUT INCLUS : la construction réalisée par Creatik Solution en RE2020 pour une maison moins consommatrice d'énergie, le foncier sous réserve de disponibilités et les frais annexes.
Plus d'informations sur demande
81 m²
2 076 €
553 m²
3
2
Contact ANCENIS CREATIK SOLUTION
Contacter gratuitement à l'aide du formulaire ci-dessous.