Idéalement situé entre Primrose et le parc Bordelais, dans l'un des secteurs les plus prisés de Caudéran, ce bien bénéficie d'un cadre de vie privilégié, alliant calme, verdure et proximité des commodités. Le quartier offre une ambiance de village avec ses commerces, ses écoles réputées et ses transports accessibles à pied. La copropriété soigneusement entretenue, assure un environnement serein et convivial, parfait pour une vie citadine tout en douceur.
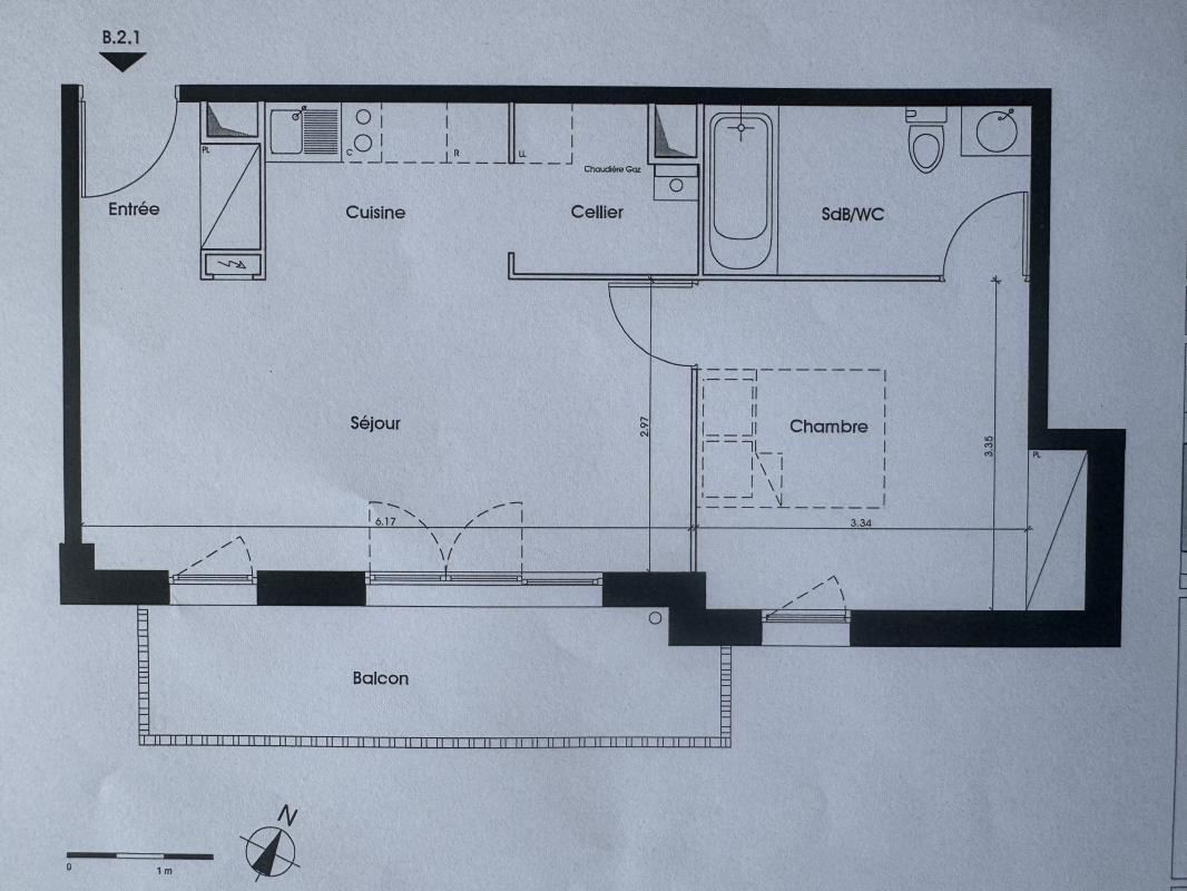
Venez découvrir ce T2 en parfait état, meublé, qui allie élégance, fonctionnalité. et est particulièrement lumineux grâce à ces larges baies récentes en double vitrage. Le séjour, spacieux et accueillant, donne accès à une terrasse où vous pourrez profiter des doux moments de détente en admirant une vue dégagée. La chambre confortable et son placard vous garantit des nuits paisibles.
De plus, un stationnement intérieur est inclus, offrant une sécurité et une commodité supplémentaire grâce à sa cave.
C'est un cadre idéal pour votre future résidence principale ou pour investir.
CONFORT ET STANDING AU CENTRE DE CAUDERAN
Honoraires à la charge du vendeur. Dans une copropriété de 21 lots. Aucune procédure n'est en cours. DPE en cours. Les informations sur les risques auxquels ce bien est exposé sont disponibles sur le site Géorisques : georisques.gouv.fr.
Votre conseiller RH Patrimoine : Gérant associé - Philippe HERVE Carte T CPI 3301 2018 000 029 220
41.31 m²
5 205 €
16 m²
1
1
1
1 (séparé)
1 sur 6
121.00 € / mois
Oui
Ouest
Nord
Oui
Oui
1
Oui
1
Oui
Oui (21 lots)
Contact Philippe HERVE
Contacter gratuitement à l'aide du formulaire ci-dessous.