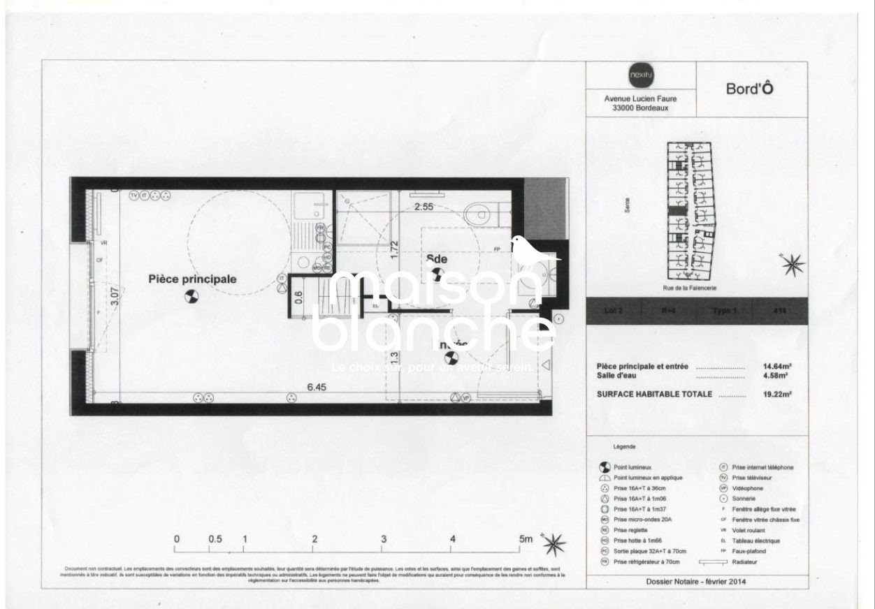
A BORDEAUX dans le quartier de la gare, Ageco Immobilier vous propose cet agréable T1 de 26 m², à l'étage avec ascenseur, au calme. L'appartement bénéficie d'un parking. Il est composé d'un séjour, d'une kitchenette équipée et d'une salle d'eau avec WC. Résidence sécurisée avec services. (laverie et local à vélo). Idéal étudiant.
Date de diagnostic énergétique :19/09/2025 DPE C et GES A Montant estimé des dépenses annuelles d'énergie pour un usage standard : Entre 420 et 600 par an. Prix moyen des énergies indexé sur l'année 2021, 2022 et 2023 (abonnement compris). Bénéficiez d'un revenu immédiat garanti de 1141.14 par trimestre. Loyer révisé chaque année selon l'évolution de l'indice IRL. Bail civil résiliable tous les 3 ans soit le 31/08/2028.
Les informations sur les risques auxquels ce bien est exposé sont disponibles sur le site Géorisques : www.georisques.gouv.fr
Bien vendu soumis au statut de la copropriété.. Nombre de lots dans l'immeuble : 430 dont 264 d'habitation. Montant moyen annuel des charges : 1 346 . Pas de procédure en cours.
Honoraires à la charge du vendeur. Dans une copropriété de 430 lots. Quote-part moyenne du budget prévisionnel 1 346 /an. Aucune procédure n'est en cours. Classe énergie C, Classe climat A Montant estimé des dépenses annuelles d'énergie pour un usage standard : entre 437.00 et 592.00 sur les années 2021, 2022 et 2023 (abonnements compris). Les informations sur les risques auxquels ce bien est exposé sont disponibles sur le site Géorisques : georisques.gouv.fr.
Votre conseiller AGECO : Gérant - Eric LAMEZEC Carte T CPI31012016000008928 RCP AXA France IARD S.A., 313 Terrasses de l'Arche 92 727 NANTERRE
26.26 m²
2 532 €
1
1
1
1 sur 5
1992
Oui
1
Oui
Oui (430 lots)
Consommations énergétiques
Logement économe
164
Logement énergivore (kWhEP/m2/an)
Émissions de gaz à effet de serre
Faible émission de GES
4
Forte émission de GES(kgeqCO2/m2/an)
Contact AGECO
Contacter gratuitement à l'aide du formulaire ci-dessous.