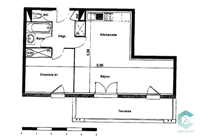
Vendu loué à Auterive (31190) : appartement, orienté au sud-ouest avec terrasse de 43 m² au 3e étage. Il s'agence comme suit : une pièce à vivre, une chambre, une cuisine américaine, une salle de bains et des toilettes. En annexe, il bénéficie d'une place de parking. Vue dégagée.
Proche gare (Auterive), établissements scolaires, cinéma, restaurants, commerces, boulangeries, supermarché, épiceries et bureau de poste. Marché Place des Halles le vendredi matin. Autoroutes A66, A61 et A64 à 16 km.
C'est un appartement en copropriété.
Contactez nos conseillers pour obtenir de plus amples renseignements sur cet appartement à vendre à Auterive.
Honoraires à la charge du vendeur. Dans une copropriété de 70 lots. Quote-part moyenne du budget prévisionnel 1 140 /an. Aucune procédure n'est en cours. Classe énergie C, Classe climat A Montant moyen estimé des dépenses annuelles d'énergie pour un usage standard, établi à partir des prix de l'énergie de l'année 2021 : entre 410.00 et 590.00 . Les informations sur les risques auxquels ce bien est exposé sont disponibles sur le site Géorisques : georisques.gouv.fr.
Votre conseiller AGECO : Gérant - Eric LAMEZEC Carte T CPI31012016000008928 RCP Zurich Insurance Europe AG - 112, Avenue de Wagram 75017 Paris
42.65 m²
1 782 €
24 m²
2
1
1
1 (séparé)
3 sur 4
95.00 € / mois
2008
Sud
Ouest
1
1
Oui
Oui (70 lots)
Consommations énergétiques
Logement économe
134
Logement énergivore (kWhEP/m2/an)
Émissions de gaz à effet de serre
Faible émission de GES
3
Forte émission de GES(kgeqCO2/m2/an)
Contact AGECO
Contacter gratuitement à l'aide du formulaire ci-dessous.