VOTRE APPARTEMENT SPACIEUX ET MODERNE IDEALEMENT SITUE
C'est au coeur de son centre-ville, à deux pas de l'église, que se niche votre appartement et son îlot arboré, une situation idéale à proximité immédiate des commerces, des écoles, des services de santé et des équipements culturels.
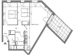
Découvrez ce T3 de 69 m2, pensé pour allier confort et convivialité. Sa grande pièce de vie de 30 m2, avec cuisine aménagée, s'ouvre sur une terrasse de 12 m2, un écrin parfait pour partager des instants chaleureux en famille ou entre amis.
L'appartement comprend deux chambres équipées de placards, une salle de bain moderne avec faïences toute hauteur ainsi qu'un WC indépendant, offrant un espace fonctionnel et bien agencé pour la vie quotidienne.
Un appartement idéalement situé et pensé pour vous et votre famille.
Deux places de parking (en sus 30 000) complètent ce bien.
- Aucun travaux à prévoir - Frais de Notaires Réduits - Garanties - RT 2012 - ...
VOTRE APPARTEMENT SPACIEUX ET MODERNE IDEALEMENT SITUE
Honoraires à la charge du vendeur. Dans une copropriété de 15 lots. Aucune procédure n'est en cours. DPE en cours. Les informations sur les risques auxquels ce bien est exposé sont disponibles sur le site Géorisques : georisques.gouv.fr.