GRAND T2 AVEC TERRASSE ET PARKINGS EN PLEIN COEUR DU CENTRE-VILLE
C'est au coeur de son centre-ville, à deux pas de l'église, que se niche la résidence et son îlot arboré, une situation idéale à proximité immédiate des commerces, des écoles, des services de santé et des équipements culturels.
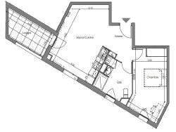
L'appartement se compose d'une spacieuse pièce de vie de 27 m² avec cuisine aménagée, baignée de lumière grâce à son orientation sud-ouest, donnant accès à une terrasse de 8m2 avec vue dégagée sur l'îlot paysager de la résidence. La chambre de 15 m², avec placard intégré, offre un beau volumes, idéal pour accueillir également un espace bureau. La salle d'eau moderne avec WC, de plus de 7 m², est conçue pour intégrer un espace buanderie pour davantage de praticité.
Un bien rare, alliant lumière, calme et confort, dans un emplacement recherché à deux pas des commerces, des services et des transports vers Bordeaux.
Deux places de Parkings (en sus 25 000) complètent ce bien.
- Aucun travaux à prévoir - Frais de Notaires Réduits - Garanties - RT 2012 - ...
GRAND T2 AVEC TERRASSE ET PARKINGS EN PLEIN COEUR DU CENTRE-VILLE
Honoraires à la charge du vendeur. Dans une copropriété de 15 lots. Aucune procédure n'est en cours. DPE en cours. Les informations sur les risques auxquels ce bien est exposé sont disponibles sur le site Géorisques : georisques.gouv.fr.