Vue exceptionnelle, sublime appartement 75 m2 avec Terrasse
Saint-Didier-au-Mont-d'Or 69370
0
Honoraires à la charge du vendeur.
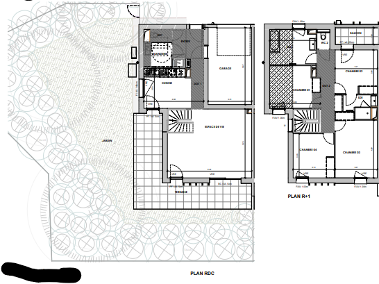
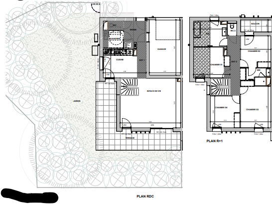
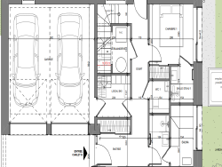
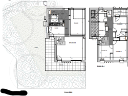
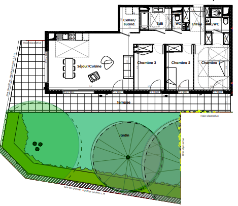
Saint Didier au Mont d'Or, venez vite visiter ce magnifique appartement avec une vue à couper le souffle dans une sublime résidence de prestige. Sa belle pièce de vie de plus de 35 m2 se prolonge d'une grande terrasse ensoleillée de 17 m2 laissant entrer une grande luminosité dans tout l'appartement. Il offre également 2 belles chambres, une grande salle de bains contemporaine, une buanderie pour le côté pratique. La route que vous voyez sur les photos (créée pour les travaux) va être entièrement réaménagée pour retrouver le terrain initial c'est à dire de la verdure à perte de vue. La résidence entièrement au calme vous accueille dans son écrin ou vous n'entendez que le chant des oiseaux. Pas de vis à vis, prestations trés haut de gamme pour cet appartement d'exception. Les travaux seront finalisés dans quelques mois pour emménager cette année. Un box est prévu en sus si vous le désirez. J'attends votre appel pour une visite ! Aurélie BELIN 06 16 83 85 51 aurelie.belin@smartproprio.com - Annonce rédigée et publiée par un Agent Mandataire -
75 m²
6 987 €
35 m²
3
2
1
1
2025
Ouest
Oui
Oui
1
Oui
Contact BELIN AURELIE
Contacter gratuitement à l'aide du formulaire ci-dessous.