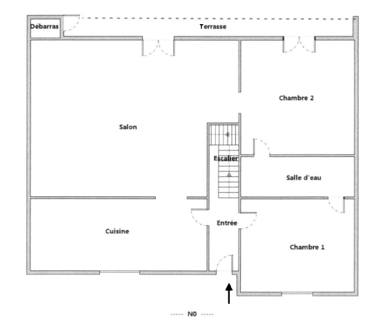
GABRIELE IMMOBILIER vous présente à la vente à SIX FOURS LES PLAGES un bien unique. Un superbe appartement de type 5 de 145M2 disposant une grande terrasse de 60M2 avec une splendide vue panoramique du FARON au MAI, au calme et sans vis-à-vis, disposant aussi d'un jardin d'environ 200m2. Dans une petite copropriété de 3 lots, découvrez ce charmant appartement clair et lumineux rénové avec goût. Comprenant un hall d'entrée, une grande pièce à vivre de 48m2, une cuisine indépendante, trois chambres dont une double, un dressing, un wc, une salle de bain avec douche une place de parking privative. Enfin vous aurez la jouissance d'un grand garage pour stocker ou bricoler et d'un jardin collectif avec potager. GABRIELE IMMOBILIER , immatriculé au RCS de TOULON no 978 318 087 / Référence annonce : 147 Les informations sur les risques auxquels ce bien est exposé sont disponibles sur le site Géorisques : www.georisques.gouv.fr
145 m²
3 097 €
45 m²
5
3
1
1
1 sur 2
Sud
Est
1
2
Oui (3 lots)
Consommations énergétiques
Logement économe
87
Logement énergivore (kWhEP/m2/an)
Émissions de gaz à effet de serre
Faible émission de GES
2
Forte émission de GES(kgeqCO2/m2/an)
Contact ATIAS
Contacter gratuitement à l'aide du formulaire ci-dessous.