Appartement T3 de Prestige - Un Refuge de Luxe et de Confort
Imaginez-vous dans un havre de paix où chaque détail a été soigneusement pensé pour vous offrir une qualité de vie exceptionnelle. Cet appartement T3 de grand standing, situé au premier étage d'une résidence neuve, est l'incarnation même du luxe et du confort moderne.
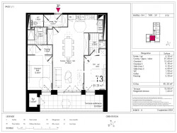
Avec une surface habitable de 81 m², cet appartement baigne dans une lumière douce et chaleureuse grâce à son exposition nord-ouest. Le séjour, d'une superficie de 38 m², est un espace de vie spacieux et élégant, parfait pour recevoir vos proches ou vous détendre après une longue journée.
Cet appartement comprend 2 chambres douillettes, idéales pour créer des espaces intimes et personnalisés. Les deux salles de bains, modernes et fonctionnelles, ajoutent une touche de sophistication à votre quotidien. Le WC indépendant garantit une intimité optimale.
La cuisine, bien que nue, offre un potentiel immense pour créer un espace culinaire à votre image. Le coin cuisine, pratique et bien conçu, est prêt à accueillir vos idées de décoration et vos appareils électroménagers.
L'appartement est équipé d'un chauffage individuel, garantissant une température agréable tout au long de l'année. Les ouvertures en PVC et les portes à double vitrage assurent une isolation thermique et phonique optimale, pour un confort inégalé.
Conforme aux normes PMR, cet appartement est accessible à tous, offrant ainsi une sécurité et une praticité accrues. L'ascenseur facilite l'accès à votre logement, tandis que la terrasse extérieure vous invite à profiter des beaux jours en toute sérénité.
Deux places de stationnement extérieures sont à votre disposition, vous offrant une tranquillité d'esprit pour garer votre véhicule en toute sécurité.
Imaginez-vous préparer un dîner raffiné dans votre cuisine, puis vous détendre sur votre terrasse, bercé par le chant des oiseaux. Cet appartement est bien plus qu'un simple logement ; c'est un véritable refuge où chaque instant devient un moment de plaisir.
Ne manquez pas cette opportunité unique de vivre dans un environnement prestigieux et luxueux. Contactez-nous dès aujourd'hui pour organiser une visite et découvrir par vous-même tout le potentiel de cet appartement exceptionnel.
À proximité, vous trouverez plusieurs commodités pratiques : un bus à 5 min à pied, une maternelle à 5 min à pied, une alimentation générale à 10 min à pied, un restaurant à 5 min à pied, un médecin généraliste à 5 min à pied, plusieurs écoles élémentaires à 15 min à pied, plusieurs collèges à 5 min en voiture et un parc et jardin à 10 min en voiture.
Honoraires à la charge du vendeur. Dans une copropriété de 42 lots. Aucune procédure n'est en cours. Non soumis au DPE. Les informations sur les risques auxquels ce bien est exposé sont disponibles sur le site Géorisques : georisques.gouv.fr.
Carte pro. 6203 2021 000 000 002 AC 6203 2021 000 000 015
81 m²
3 704 €
38 m²
3
2
2
1 (séparé)
1 sur 2
Ouest
Nord
Oui
2
1
Oui (42 lots)
Contact La Villa Immobilier
Contacter gratuitement à l'aide du formulaire ci-dessous.