VUE PANORAMIQUE ET AMOUREUX DE LA NATURE - MAISON AVEC POTEN
Tassin-la-Demi-Lune 69160
0
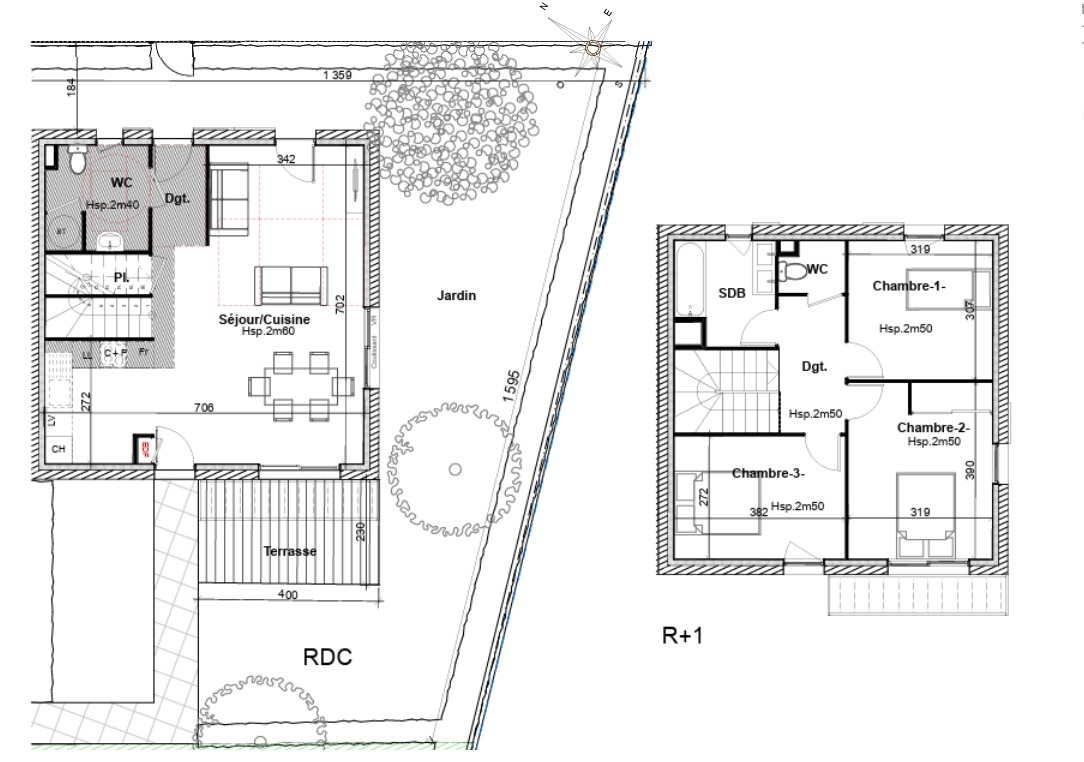
Franchise Ouest Immo vous propose, sur la commune de Pollionnay, à la limite de Sainte-Consorce, une belle maison traditionnelle d'environ 90 m2 utiles, implantée sur une parcelle arborée de 1 650 m2, en zone naturelle, avec une vue imprenable sur la campagne environnante. Vous serez séduit par son environnement verdoyant, calme et sans vis-à-vis. La maison se compose d'une agréable pièce de vie traversante, baignée de lumière grâce à ses grandes ouvertures vitrées, avec cuisine équipée ouverte sur le séjour et poêle à bois. Deux chambres de plain-pied ainsi qu'une salle de bains complètent le rez-de-chaussée. À l'étage, une suite parentale vous attend, avec salle de bains privative et espace dressing. Le sous-sol complet, actuellement aménagé en garage, atelier et bureau, offre un fort potentiel d'aménagement supplémentaire. Un permis permet une extension de 100 m2 de surface de plancher (deux niveaux de 50 m2) ainsi que la création d'une piscine. Si vous recherchez un bien alliant charme, nature, et potentiel d'évolution, cette maison est faite pour vous. 3D DISPONIBLE Pour plus de renseignements et visite, contactez Eva CARNELOS 06.34xx08x81xx69 ou Jules HAERRIG 07xx71x79x20xx11
90 m²
4 333 €
1650 m²
4
3
1
1
1
1970
Oui
Consommations énergétiques
Logement économe
406
Logement énergivore (kWhEP/m2/an)
Émissions de gaz à effet de serre
Faible émission de GES
75
Forte émission de GES(kgeqCO2/m2/an)
Contact MONTILLET Bernard
Contacter gratuitement à l'aide du formulaire ci-dessous.