Vue Tour Eiffel ! Duplex lumineux 3 pièces - Vaneau - Rue de Sèvres, Paris 6ème
Paris 75006
0
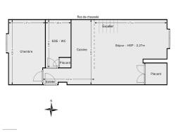
Hosman vous propose ce duplex traversant de 41,20 m² Carrez (55,86 m² au sol, 46 m² pondérés) situé Rue de Sèvres, Paris 6ème. Lumineux et sans vis-à-vis, profitez d'une vue exceptionnelle sur un monument historique et la Tour Eiffel. L'appartement est au 4ème étage d'un immeuble sans ascenseur d'un immeuble ancien très bien entretenu avec gardienne à demeure.
L'appartement se compose de la manière suivante :
- Une entrée avec visiophone donnant accès à un spacieux séjour de 19,69 m² carrez (21,24 m² au sol) ; orienté nord-ouest sur rue avec une vue sur la Tour Eiffel et l'ancien Hôpital Laennec. L'espace de vie se complète d'une cuisine ouverte entièrement équipée donnant sur la rue (plaques vitrocéramiques, lave-vaisselle encastré, emplacement réfrigérateur) ;
- Une salle d'eau moderne avec douche à l'italienne, WC suspendus et emplacement pour machine à laver ;
- Une chambre sur cour de 8,77 m², exposée sud-est au calme ;
- À l'étage, une belle chambre mansardée avec poutres apparentes de 6,5 m² Carrez, 16, 41 m² au sol, disposant d'un velux orienté sud-est sur cour.
Une cave complète le bien.
Le système de chauffage est électrique, tout comme le système d'eau chaude.
Les charges de copropriété sont de 116€ par mois.
La taxe foncière annuelle est de 629 €.
L'appartement est idéalement situé dans le 6ème arrondissement de Paris, à proximité de nombreux commerces, restaurants et à quelques minutes à pied du Bon Marché. Le bien est sectorisé avec l'école primaire Littré et le prestigieux collègue/lycée Montaigne.
Vous êtes à seulement quelques minutes à pied du métro Vanneau (ligne 10) et à 4 minutes à pied du métro Sèvres-Babylone (lignes 10, 12).
Le bien est soumis au statut de copropriété.
Planifiez facilement votre visite en choisissant le créneau qui vous convient depuis le site d'Hosman.
Hosman s'efforce de réinventer l'agence immobilière en offrant un service innovant et transparent aux acheteurs et aux vendeurs. Nos frais d'agence sont de 19 900 euros fixes à la charge du vendeur.
Si vous êtes un professionnel de l'immobilier (agent, mandataire ou chasseur immobilier), sachez que toutes les annonces Hosman sont ouvertes à la collaboration. N'hésitez pas à nous contacter pour en discuter.
46 m²
14 130 €
3
2
1
1
1
4 sur 5
Ouest
Nord
Oui
Oui
Consommations énergétiques
Logement économe
410
Logement énergivore (kWhEP/m2/an)
Émissions de gaz à effet de serre
Faible émission de GES
13
Forte émission de GES(kgeqCO2/m2/an)
Contact Claire Gervais
Contacter gratuitement à l'aide du formulaire ci-dessous.