Annonces
Bretagne
Finistère
Chateaulin
Location local atypique Chateaulin
Transaction
Vente
Location
Viager
Bien
Appartement
Maison
Terrain
Local
Stationnement
Immeuble
Entrepôt
Boutique
Bureau
Autre
Ville, CP, département, ...
Chateaulin (29)
0
10
20
30
40
50
km
0
10
25
40
km
0
10
20
30
45
min
Surface
m²
m²
Terrain
m²
m²
Budget
€
€
Pièce(s)
Chambre(s)
Année de construction
Mot clé 1
Mot clé 2
Mot clé 3
Mot clé 4
Filtres
Sans vis à vis
Annonces avec photo
Mobilité réduite
Mandat exclusif
Annonces de - de 24h
Annonces de - de 3j
Annonces de - de 7j
Toutes les annonces
de critères
0 local atypique en location à Chateaulin (29)
Trier par :
Prix
| Date
Modifier ma recherche
Annonces proches de vos critères
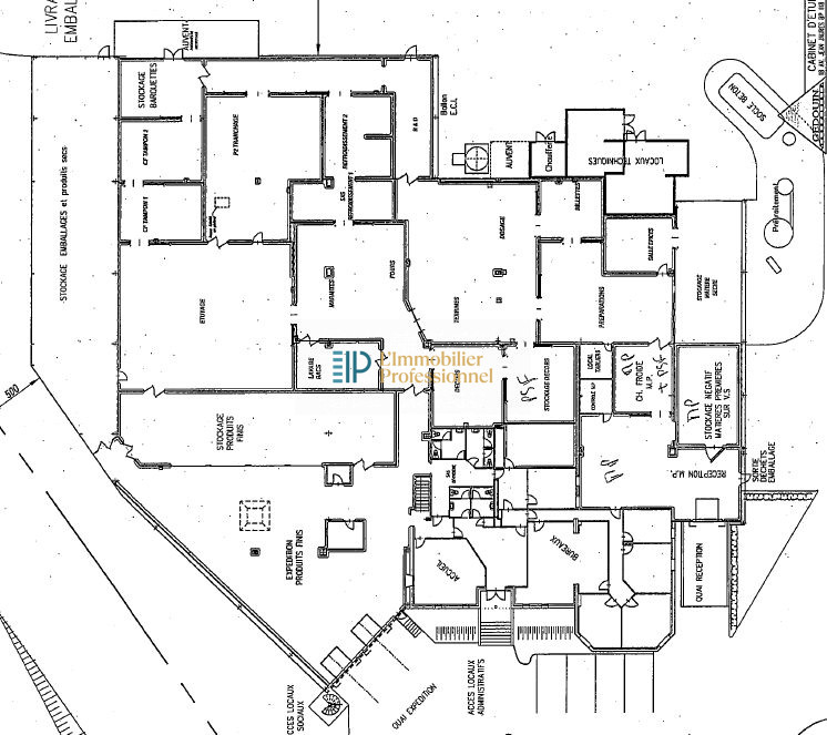
9
1072 m²
Location local
Chateaulin 29150 - 0
5 000 €
...La hauteur sous faitière est de 9,20 m...
Voir l'annonce
Code postaux
29150
*
Villes voisines
Port-Launay
*
Lothey
*
Cast
*
Saint-Ségal
*
Dinéault
*
Pont-de-Buis-lès-Quimerch
*
Quéménéven
*
Gouézec
*
Lopérec
*
Pleyben
*
Plomodiern
*
Rosnoën
*
Ploéven
*
Trégarvan
*
Landrévarzec
*
Plonévez-Porzay
*
Briec
*
Le Faou
*
Edern
*
Locronan
*
Types de bien
atelier
1
Autres...
avec garage
1
nature
1