Goodshowcase
Location local de caractère Kervignac

0 local de caractère en location à Kervignac (56)

Trier par : Prix | Date

Annonces proches de vos critères

Location local

Kervignac 56700 - 0

7 500 €

...Une cour intérieure de quelques places de parking...

Voir l'annonce

Location local

Kervignac 56700 - 0

2 500 €

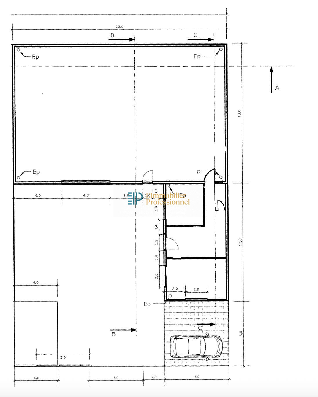
...Ce bien de 366 m² comprend un atelier de 260 m², des bureaux et locaux sociaux de 66 m²...

Voir l'annonce

Location local

Kervignac 56700 - 0

4 992 €

...Dans un ensemble neuf, brut de béton isolé double peau (périphérique et toit), plancher isolé...

Voir l'annonce

Location local

Kervignac 56700 - 0

3 744 €

...Accès facile aux poids lourds Parking privé inclus Enceinte sécurisée Options de box au m² et...

Voir l'annonce

Location local

Kervignac 56700 - 0

2 667 €

...</p> DPE En cours - Type de bail : Commercial - Durée : 3/6/9 ans - Préavis : 6 mois -...

Voir l'annonce
Code postaux
Quartiers de Kervignac