Goodshowcase
Vente appartement proche port Audenge

7 appartements proche port en vente à Audenge (33)

Trier par : Prix | Date

Vente appartement

Audenge 33980 - 0

169 000 €

... accessible via un portail électrique, est également incluse.Pour tout renseignement complémentaire ...

Voir l'annonce

Vente appartement

Audenge 33980 - 0

169 000 €

... desserte en transport en commun efficace pour vos déplacements. Dans un état général très bon, ce ...

Voir l'annonce

Vente appartement

Audenge 33980 - 0

273 000 €

... vous séduire ! Reportage photos et vidéo de la visite filmée sur demande. Coût annuel en énergie es...

Voir l'annonce

Vente appartement

Audenge 33980 - 0

319 900 €

... des commerces, du port et des piscines de baignade. Vous serez séduit par sa magnifique pièce de v...

Voir l'annonce

Vente appartement

Audenge 33980 - 0

305 000 €

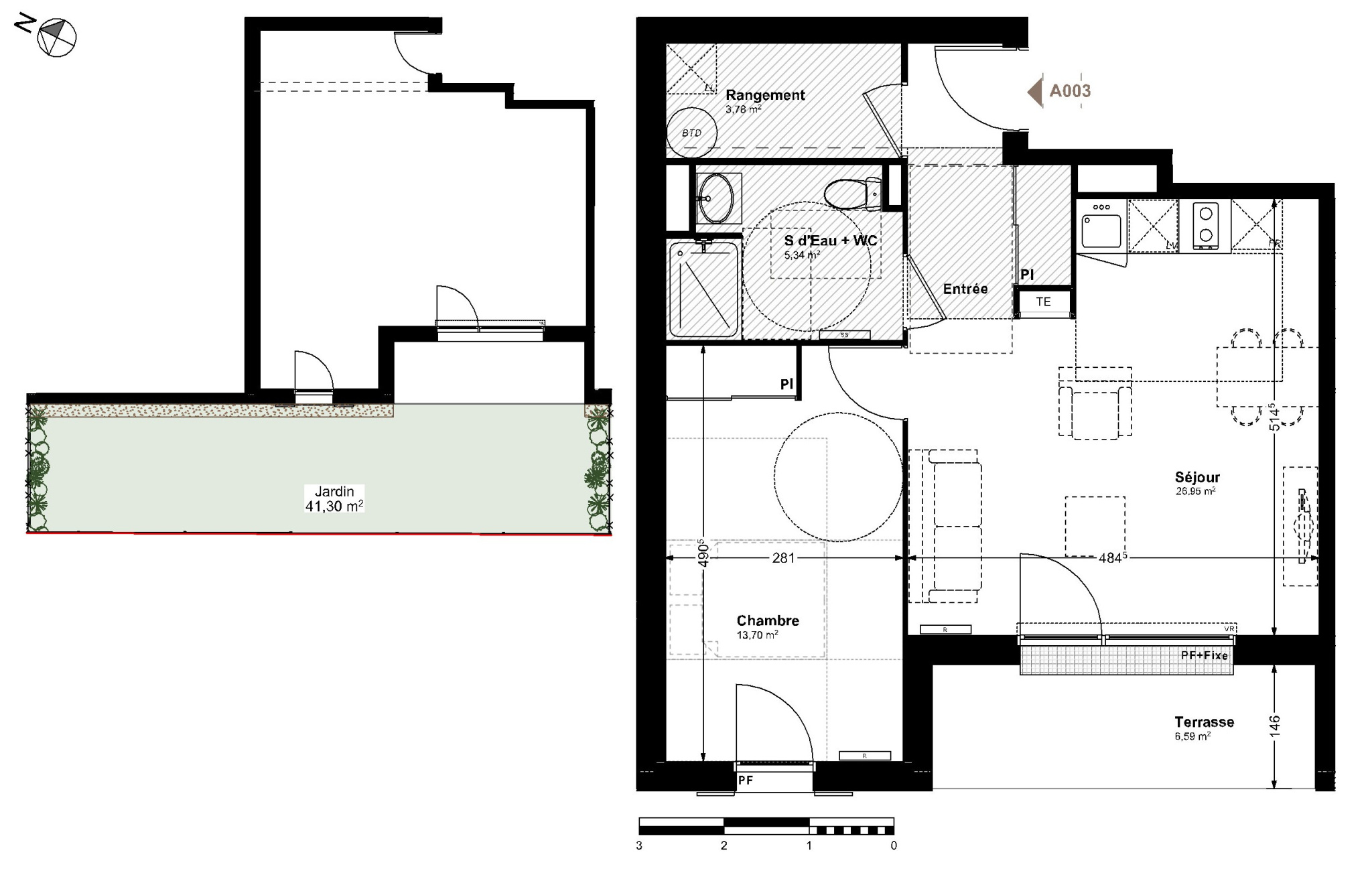
... AUDENGE - DANS UNE RESIDENCE INTIMISTE DE 19 APPARTEMENTS - ARCHITECTURE TYPIQUE DU BASSIN RESPECTE...

Voir l'annonce

Vente appartement

Audenge 33980 - 0

280 000 €

... verte. Avec son port de plaisance vous êtes à quelques encablures de l'iles aux oiseaux et des caba...

Voir l'annonce

Vente appartement

Audenge 33980 - 0

245 000 €

... AUDENGE - DANS UNE RESIDENCE INTIMISTE DE 19 APPARTEMENTS - ARCHITECTURE TYPIQUE DU BASSIN RESPECTE...

Voir l'annonce