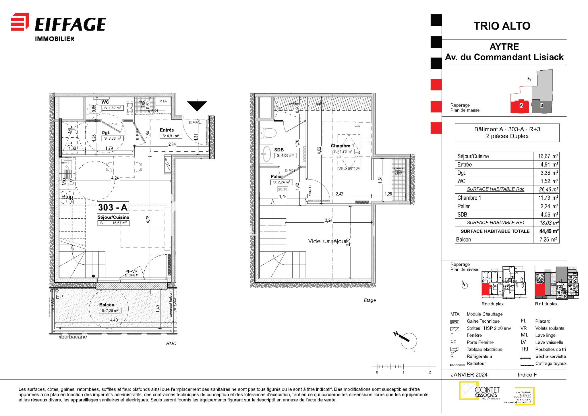
Aytré 17440 - 0
... conçu de façon atypique et soignée alternant bardages métalliques et touches de bois naturel. C...