Goodshowcase
Vente appartement Hauts-de-Seine

7 appartements éligible loi 1948 en vente dans les Hauts-de-Seine (92)

Trier par : Prix | Date

Vente appartement

Levallois-Perret 92300 - 0

480 000 €

... 50 77 11 RSAC 918619487...

Voir l'annonce

Vente appartement

Clichy 92110 - 0

390 000 €

... construit entre 1948 et 1969, est bien entretenu. Un local à vélos est disponible. Des discussions ...

Voir l'annonce

Vente appartement

Neuilly-sur-Seine 92200 - 0

580 000 €

... construit entre 1948 et 1969, est en bon état avec des parties communes bien entretenues et un loca...

Voir l'annonce

Vente appartement

Nanterre 92000 - 0

220 000 €

... de la période 1948-1969 bénéficie de parties communes en bon état. Hosman s'efforce de réinventer ...

Voir l'annonce

Vente appartement

Issy-les-Moulineaux 92130 - 0

195 000 €

... construit entre 1948 et 1969, est bien entretenu avec des parties communes en bon état. Hosman s'e...

Voir l'annonce

Vente appartement

Malakoff 92240 - 0

291 500 €

... sous bail Loi 1948 à une locataire de 90 ans, avec un loyer de 270 €/mois (3 240 €/an)....

Voir l'annonce

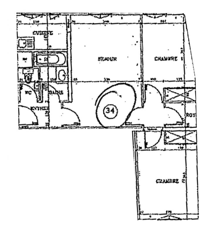
Vente appartement

Asnières-sur-Seine 92600 - 0

375 000 €

... entretenue de 1948 avec accès ascenseur en option.

Cet appartement se compose d'une entrée, ...

Voir l'annonce
Types de bien