Lentilly 69210 - 0
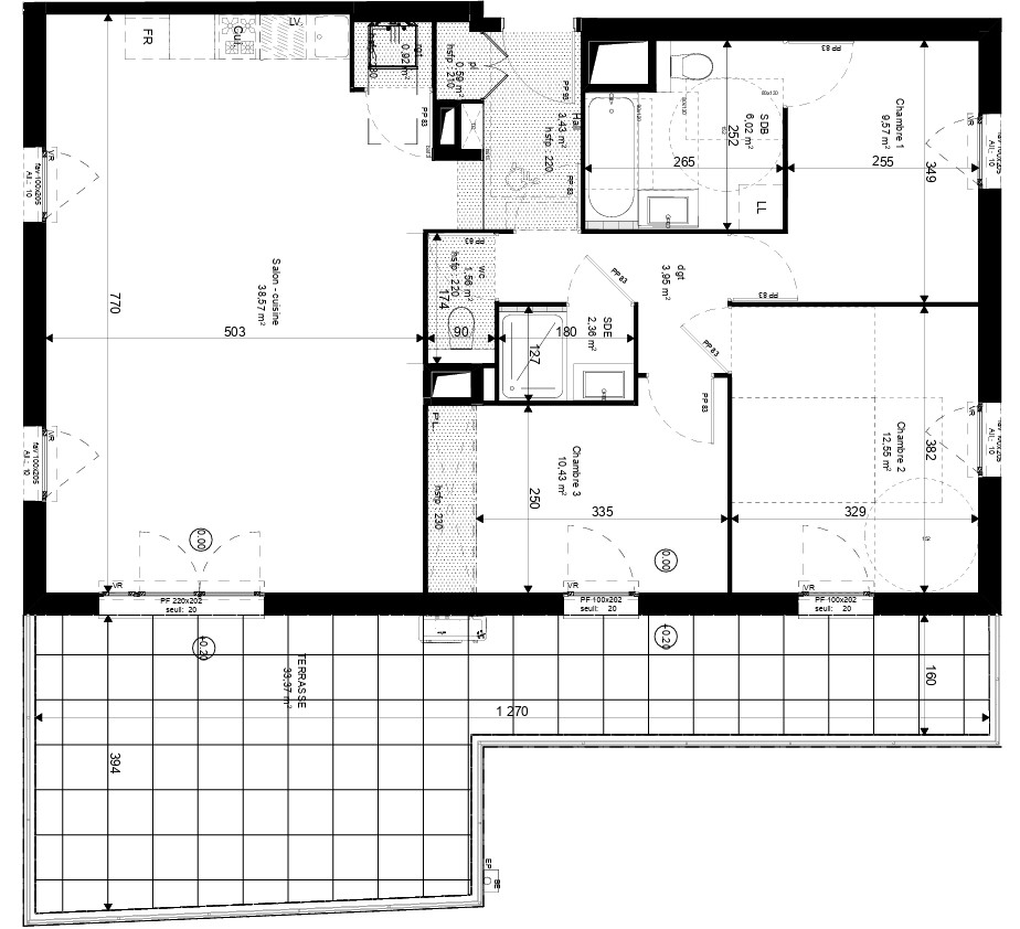
...L'appartement est vendu avec un stationnement double en sous-sol...
...37m², trois chambres, une salle de bain, une salle d'eau et un WC...
......