Goodshowcase
Vente appartement Paris (quartier Épinettes)

4 appartements en vente à Paris 75017 (quartier Épinettes)

Trier par : Prix | Date

Vente appartement

Paris 75017 - Épinettes

320 000 €

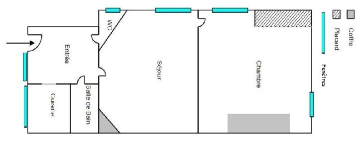
...Il comprend : une entrée, un séjour, une grande chambre, une cuisine, une salle d'eau et des WC...

Voir l'annonce

Vente appartement

Paris 75017 - Épinettes

85 000 €

...Vous pourrez l'aménager à votre guise en bénéficiant de sa clarté et en optimisant au mieux cette...

Voir l'annonce

Vente appartement

Paris 75017 - Épinettes

320 000 €

...Il comprend : une entrée, un séjour, une grande chambre, une cuisine, une salle d'eau et des WC...

Voir l'annonce

Vente appartement

Paris 75017 - Épinettes

429 000 €

...Situé dans un quartier dynamique et recherché, à proximité immédiate de toutes les commodités,...

Voir l'annonce
Quartiers de Paris