Pomponne 77400 - 0
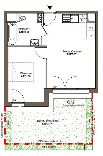
... votre confort. La cuisine équipée et moderne s'intègre parfaitement dans l'espace de vie, créant un...