Propriano 20110 - 0
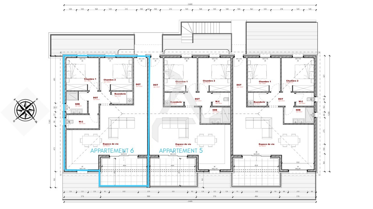
... by a local family business for your future haven of peace.This apartment is the last in a c...
... by a local family business for your future haven of peace.Information on the risks to which thi...