Goodshowcase
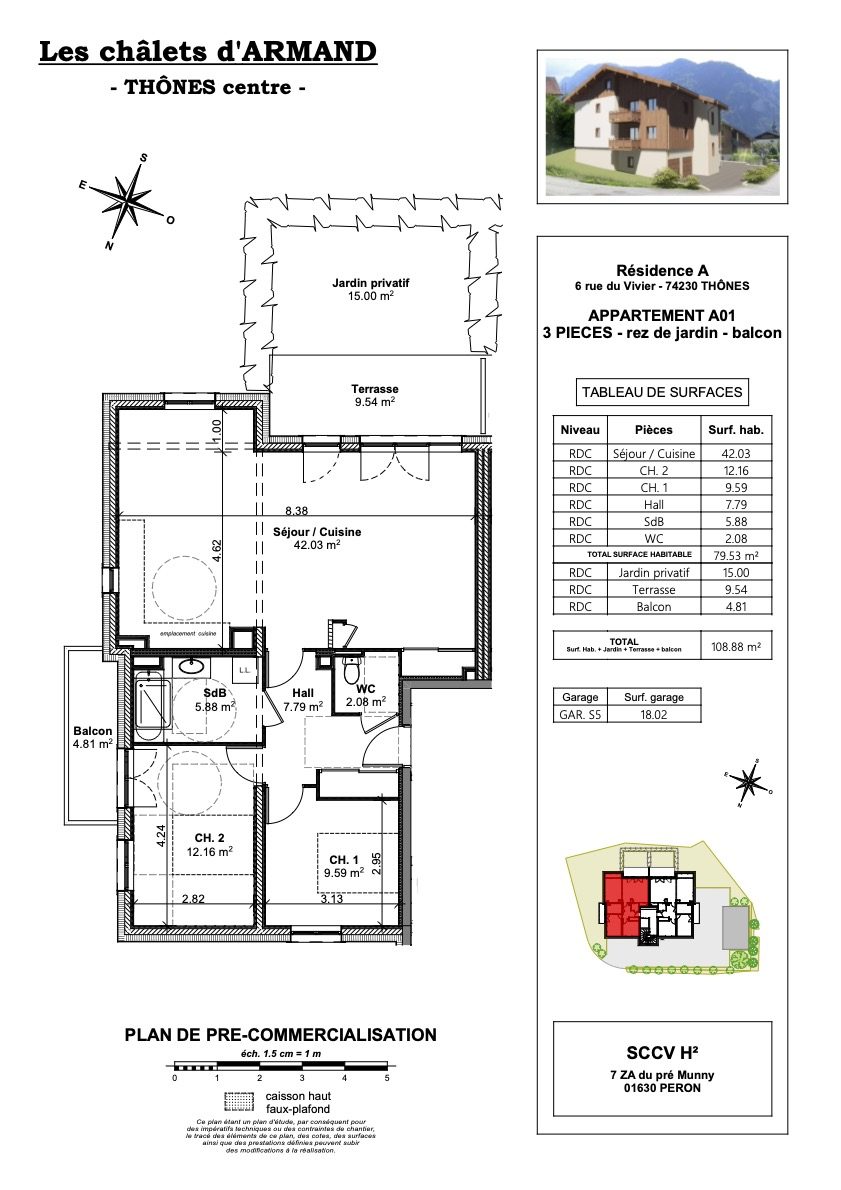
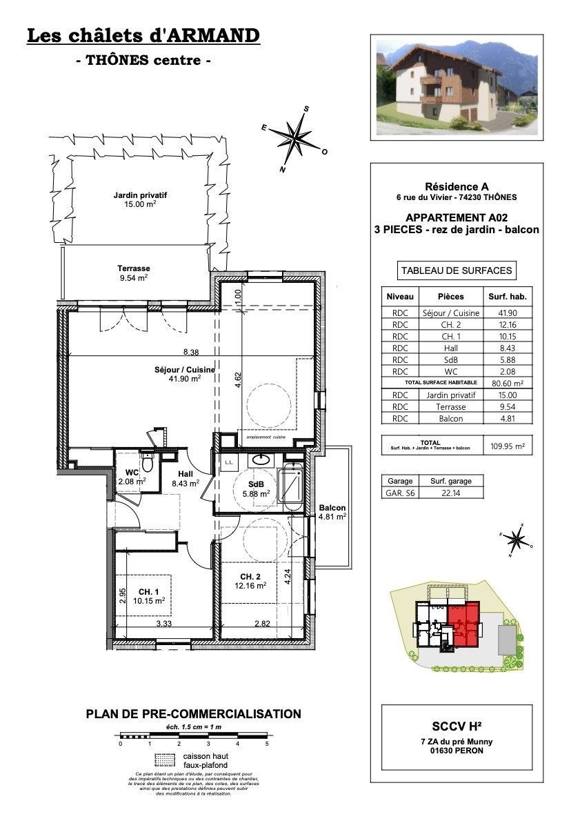
Vente appartement en rez-de-jardin Thônes

3 appartements en rez-de-jardin en vente à Thônes (74)

Trier par : Prix | Date

Vente appartement

Thônes 74230 - 0

612 000 €

... dans un quartier privilégié de Thônes, dans le nouveau programme LES CHALETS D'ARMAND, à 20km d'Ann...

Voir l'annonce

Vente appartement

Thônes 74230 - 0

479 000 €

... dans un quartier privilégié de Thônes, dans le nouveau programme LES CHALETS D'ARMAND, à 20km d'Ann...

Voir l'annonce

Vente appartement

Thônes 74230 - 0

478 000 €

... dans un quartier privilégié de Thônes, dans le nouveau programme LES CHALETS D'ARMAND, à 20km d'Ann...

Voir l'annonce