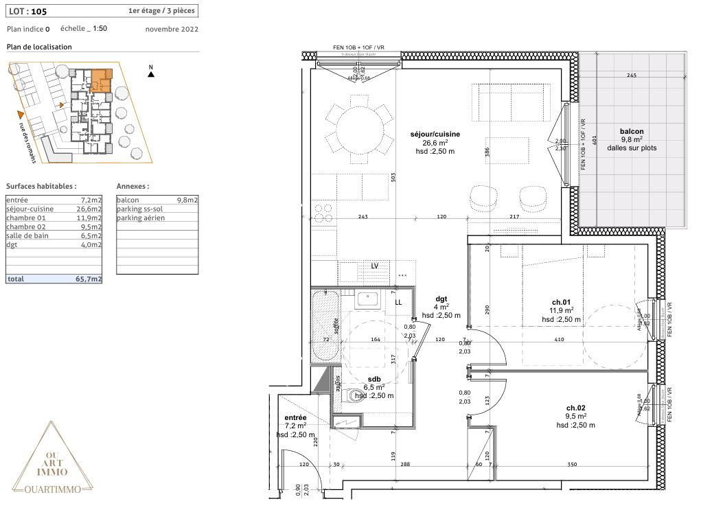
Truchtersheim 67370 - 0
...Nichée au coeur de la campagne alsacienne, la commune de Truchtersheim séduit par son cadre de...