Goodshowcase
Vente boutique ancien Paris

1 boutique ancien en vente à Paris (75001)

Trier par : Prix | Date

Vente boutique

Paris 75001 - 0

2 090 000 €

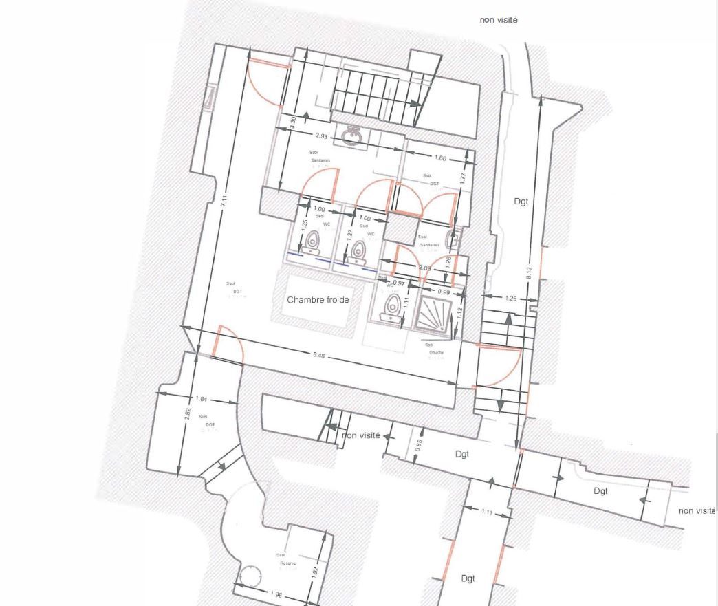
... libres d'un ancien restaurant refait à neuf avec une surface totale de 161 m² avec une façade de 7M...

Voir l'annonce
Quartiers de Paris