Annonces
Centre-Val de Loire
Eure-et-Loir
Châteaudun
Vente maison avec 2 chambres Châteaudun
Transaction
Vente
Location
Viager
Bien
Appartement
Maison
Terrain
Local
Stationnement
Immeuble
Entrepôt
Boutique
Bureau
Autre
Ville, CP, département, ...
Châteaudun (28)
0
10
20
30
40
50
km
0
10
25
40
km
0
10
20
30
45
min
Surface
m²
m²
Terrain
m²
m²
Budget
€
€
Pièce(s)
Chambre(s)
Année de construction
Mot clé 1
Mot clé 2
Mot clé 3
Mot clé 4
Filtres
Sans vis à vis
Annonces avec photo
Mobilité réduite
Mandat exclusif
Annonces de - de 24h
Annonces de - de 3j
Annonces de - de 7j
Toutes les annonces
de critères
1 maison avec 2 chambres en vente à Châteaudun (28)
Trier par :
Prix
| Date
Modifier ma recherche
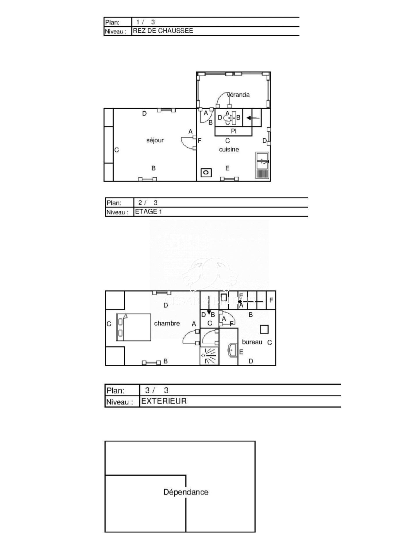
9
66 m²
T4
2
Vente maison
Châteaudun 28200 - 0
119 900 €
...A 2 minutes à pied des commerces et écoles...
Voir l'annonce
Code postaux
28200
*
Villes voisines
La Chapelle-du-Noyer
*
Marboué
*
Donnemain-Saint-Mamès
*
Douy
*
Romilly-sur-Aigre
*
Cloyes-sur-le-Loir
*
Châtillon-en-Dunois
*
Civry
*
Ozoir-le-Breuil
*
Bonneval
*
Dancy
*
Nottonville
*
Courtalain
*
Trizay-lès-Bonneval
*
Verdes
*
Ruan-sur-Egvonne
*
Arrou
*
Dangeau
*
Moisy
*
Villamblain
*
Types de bien
atelier
2
château
1
T4
4
T5
4
T8
1
Autres...
avec 2 chambres
1
avec 3 chambres
5
avec 4 chambres
2
ancien
2
ancienne
2
arboré
1
de caractère
1
avec cave
5
avec double vitrage
3
avec dressing
3
avec garage
6
avec jardin
8
avec mezzanine
1
moderne
1
avec parking
4
pas en copropriété
8
de plain pied
7
proche commerces
3
proche crèche
1
proche gare
1
proche hôpital
1
proche lac
5
proche médecin
1
proche parc
1
proche port
5
récent
4
avec terrasse
4
vue dégagée
1