Goodshowcase
Vente maison Forbach

11 maisons en vente à Forbach (57)

Trier par : Prix | Date

Vente maison

Forbach 57600 - 0

148 000 €

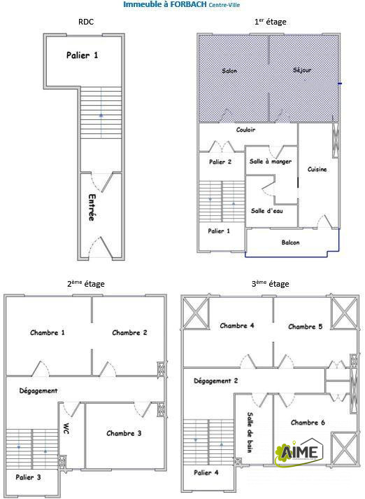
...Le séjour de 30 m² est le coeur battant de la maison, où vous pourrez recevoir vos amis et votre...

Voir l'annonce

Vente maison

Forbach 57600 - 0

227 000 €

...Au rez-de-chaussé : Une entrée , un salon , un spacieux séjour avec ses hauts plafonds et ses...

Voir l'annonce

Vente maison

Forbach 57600 - 0

169 300 €

...Nous vous proposons à la vente une maison mitoyenne d'une superficie de 126 m², idéalement située...

Voir l'annonce

Vente maison

Forbach 57600 - 0

179 500 €

...Construite en 1920 et rénovée en 1980, cette demeure de caractère allie charme d'antan et confort...

Voir l'annonce

Vente maison

Forbach 57600 - 0

203 000 €

...  Le rez-de-chaussée se compose d'une belle entrée desservant une salle de bain, une cuisine avec...

Voir l'annonce

Vente maison

Forbach 57600 - 0

535 000 €

...Construite en 1988, cette propriété de 190 m² habitables vous offre un espace de vie spacieux et...

Voir l'annonce

Vente maison

Forbach 57600 - 0

180 000 €

...Comprenant :Au Rdc : Local commercial d'env 60 m² + annexe + terrasse (Actuellement loué 1400...

Voir l'annonce

Vente maison

Forbach 57600 - 0

128 500 €

...- Budget 128 500 € HONORAIRES AGENCE A LA CHARGE DU VENDEUR - PROVISIONFREI...

Voir l'annonce

Vente maison

Forbach 57600 - 0

79 000 €

...Elle développe 194,19 m² habitables et se compose comme suit :? RDC : entrée, vaste séjour,...

Voir l'annonce