Goodshowcase
Vente maison avec 2 chambres Le Pont-de-Claix

0 maison avec 2 chambres en vente à Le Pont-de-Claix (38)

Trier par : Prix | Date

Annonces proches de vos critères

Vente maison

Le Pont-de-Claix 38800 - 0

329 000 €

...Son emplacement startégique vous donnera un accès direct à la grande Zone commerciale de COMBOIRE...

Voir l'annonce

Vente maison

Le Pont-de-Claix 38800 - 0

449 000 €

...L'interieur a été totalement rénové avec gout et des materiaux de qualité...

Voir l'annonce

Vente maison

Le Pont-de-Claix 38800 - 0

420 000 €

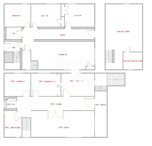
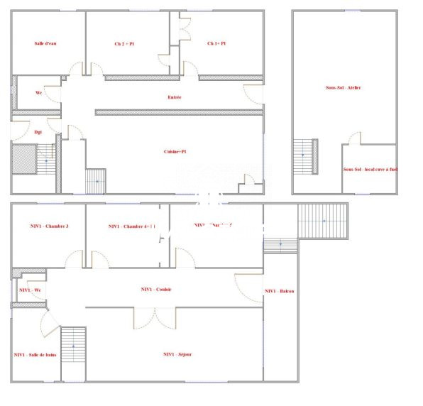
...La maison est aménagée comme suit : - rez-de-chaussée d'un hall d'entrée, un salon disposant d'un...

Voir l'annonce

Vente maison

Le Pont-de-Claix 38800 - 0

260 000 €

...Sur deux niveaux, elle offre des espaces de vie confortables et lumineux :Au rez-de-chaussée :...

Voir l'annonce

Vente maison

Le Pont-de-Claix 38800 - 0

580 000 €

...Dès l'entrée, le rez-de-chaussée séduit par ses espaces de vie de plain-pied : une cuisine...

Voir l'annonce