Merlevenez 56700 - 0
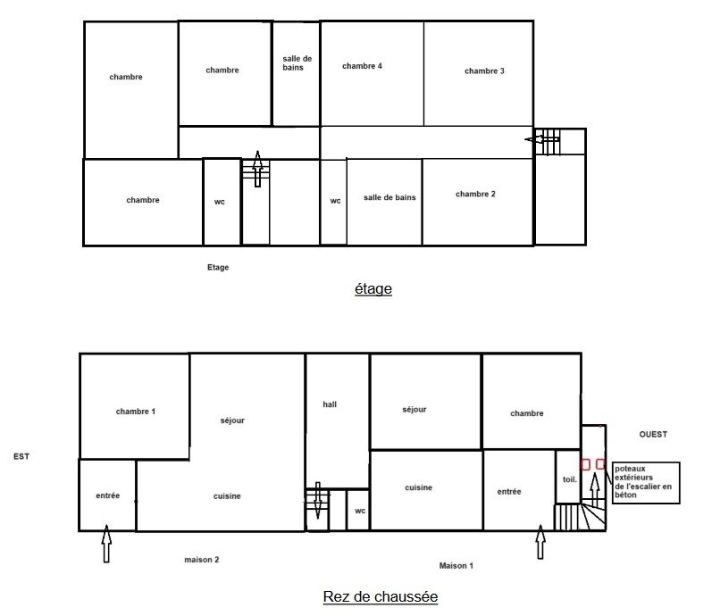
...Le tout sur un terrain d'environ 850m²...
...A l'étage, 4 chambres et salle d'eau...