Goodshowcase
Vente maison atelier Miribel

1 maison atelier en vente à Miribel (01700)

Trier par : Prix | Date

Vente maison

Miribel 01700 - 0

270 000 €

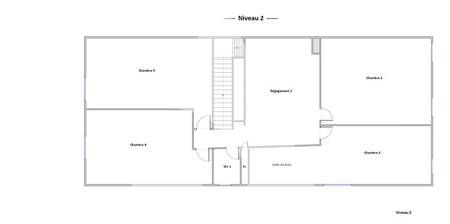
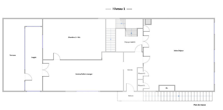
... plusieurs pièces (atelier, dépendances, salle d'eau/WC...) composent ce niveau. Il est possible de...

Voir l'annonce
Code postaux
Quartiers de Miribel