Péron 01630 - 0
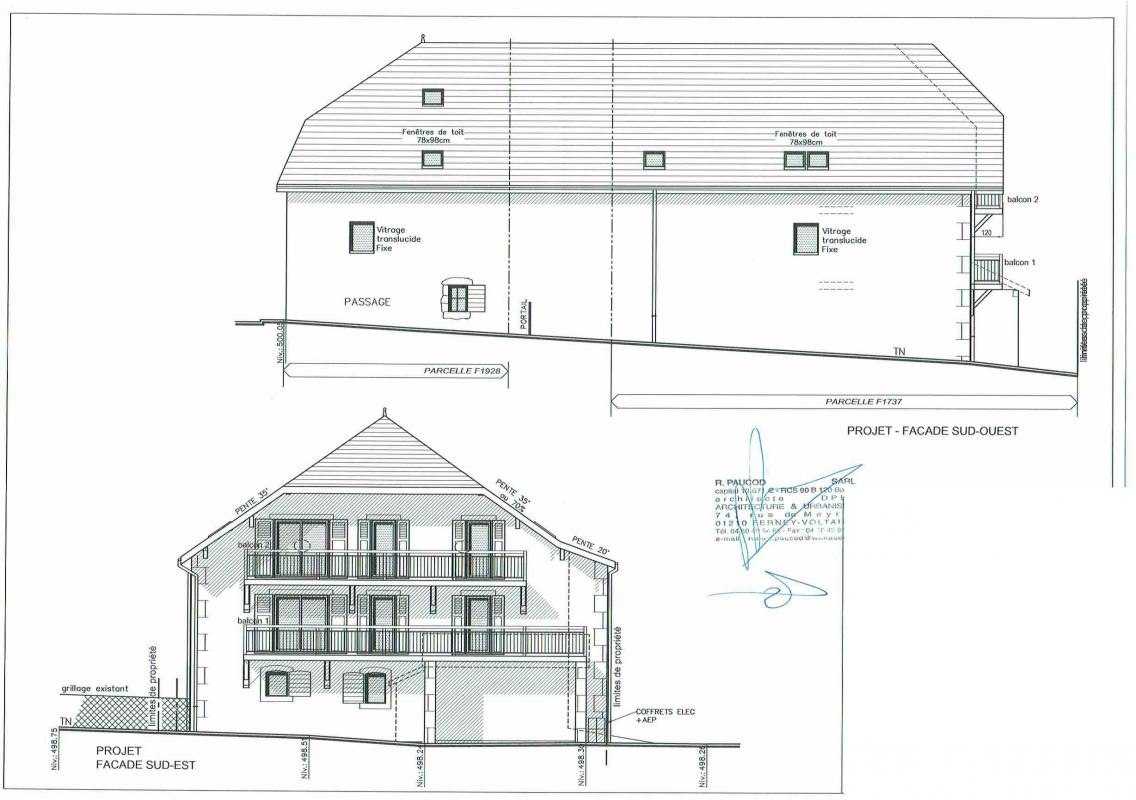
... un corps de ferme à rénover entièrement avec la possibilité de réaliser 3 logements au total avec p...