Honoraires à la charge de l'acquéreur (Prix hors honoraires : 230000 euros).
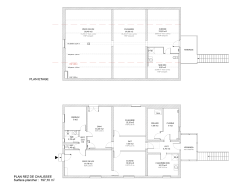
Idéal pour les investisseurs cherchant un bien locatif de choix. Nichée sur un terrain spacieux de plus de 1500 mètres, cette propriété offre une multitude d'opportunités pour des projets futurs. La maison dispose de trois cuisines, 2 salons, 5 chambres, 3 salles d'eau. Que vous souhaitiez louer l'ensemble de la propriété ou créer des appartements indépendants ce bien vous permet une souplesse appréciable. L'atout majeur de cette propriété est sans aucun doute sa dépendance de 150 mètres carrés, offrant une opportunité unique de réhabilitation. N'attendez plus pour saisir cette opportunité unique et donner vie à vos projets dans cette maison au fort potentiel. Prix 260 000EUR frais d'agence inclus à la charge acquéreur soit 250 000EUR net vendeur Contact Melle Lilia DJOUDI 0650364666 Agent Commerciale chez La Boutique du Patrimoine, NoRSAC 510 417 751 Ensemble, en confiance
170 m²
1 412 €
1335 m²
7
5
3
1
2
4.35 %
1980
2
2
Consommations énergétiques
Logement économe
293
Logement énergivore (kWhEP/m2/an)
Émissions de gaz à effet de serre
Faible émission de GES
9
Forte émission de GES(kgeqCO2/m2/an)
Contact DJOUDI
Contacter gratuitement à l'aide du formulaire ci-dessous.