Honoraires à la charge de l'acquéreur (Prix hors honoraires : 136000 euros).
' EN SCÈNE ! '
1ER ARD - Opéra
Rénovation totale de l'immeuble en 2025.
À proximité du secteur de l'opéra, de tous les commerces et commodités du quotidien, des transports, des axes autoroutiers et tous les loisirs culturels qu'offre le centre-ville.
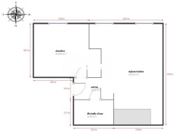
The Agency vous propose en exclusivité ce type 2 de 36,26m² Loi Carrez, au 2ème étage sans ascenseur, traversant, exposé SUD.
Il se compose d'un salon séjour avec coin cuisine meublée et partiellement équipée, une chambre, une salle d'eau avec WC et une ouverture.
L'immeuble a déjà bénéficié de nombreuses rénovations : façade, toiture, électricité, plomberie, et l'appartement a été intégralement refait : isolation, revêtements, cuisine et salle d'eau.
Honoraires inclus de 2.21% TTC à la charge de l'acquéreur. Prix hors honoraires 136 000 . Dans une copropriété de 5 lots. Aucune procédure n'est en cours. Classe énergie C, Classe climat A Montant estimé des dépenses annuelles d'énergie pour un usage standard : entre 539.00 et 750.00 sur les années 2021, 2022 et 2023 (abonnements compris). Les informations sur les risques auxquels ce bien est exposé sont disponibles sur le site Géorisques : georisques.gouv.fr.