Honoraires à la charge de l'acquéreur (Prix hors honoraires : 139000 euros).
' EN SCÈNE ! '
1ER ARD - Opéra
Rénovation totale de l'immeuble en 2025.
À proximité du secteur de l'opéra, de tous les commerces et commodités du quotidien, des transports, des axes autoroutiers et tous les loisirs culturels qu'offre le centre-ville.
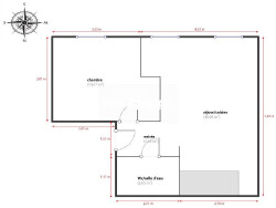
The Agency vous propose en exclusivité ce type 2 de 34.93m² Loi Carrez, au 1er étage sans ascenseur, traversant, exposé SUD.
Il se compose d'un salon séjour avec coin cuisine meublée et partiellement équipée, une chambre, une salle d'eau avec WC et une ouverture.
L'immeuble a déjà bénéficié de nombreuses rénovations : façade, toiture, électricité, plomberie, et l'appartement a été intégralement refait : isolation, revêtements, cuisine et salle d'eau.
' THE AGENCY IMMO, la méthode pour une transaction réussie '
Dans une copropriété de 5 lots. Aucune procédure n'est en cours. Classe énergie C, Classe climat A Montant moyen estimé des dépenses annuelles d'énergie pour un usage standard, établi à partir des prix de l'énergie de l'année 2021 : entre 580.00 et 810.00 . Les informations sur les risques auxquels ce bien est exposé sont disponibles sur le site Géorisques : georisques.gouv.fr.
Votre conseiller The Agency : Kenneth MEFFRE Agent commercial (Entreprise individuelle). ' THE AGENCY IMMO, la méthode pour une transaction réussie'0
34.93 m²
3 979 €
20 m²
2
1
1
1
1 sur 4
30.00 € / mois
Sud
Oui
Oui (5 lots)
Consommations énergétiques
Logement économe
185
Logement énergivore (kWhEP/m2/an)
Émissions de gaz à effet de serre
Faible émission de GES
5
Forte émission de GES(kgeqCO2/m2/an)
Contact The Agency
Contacter gratuitement à l'aide du formulaire ci-dessous.