'LE DUO DE GRANGES' VAL DE CAMPARAN - EXCLUSIVITÉ signée L
Camparan 65170
0
Honoraires à la charge de l'acquéreur (Prix hors honoraires : 149308 euros).
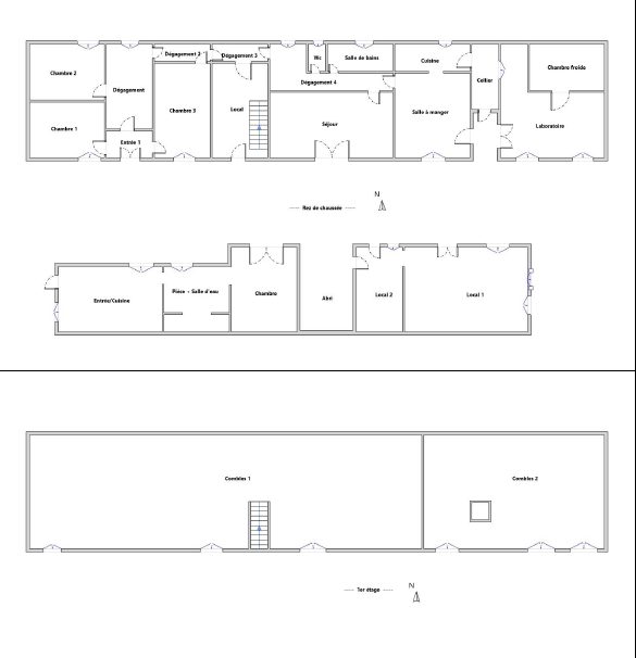
VENTE CONJOINTE DE DEUX GRANGES FORAINES Une montagne pour initiés, un rêve pyrénéen pour passionnés. C'est une opportunité rare que nous vous proposons aujourd'hui. Deux propriétaires de granges foraines mitoyennes ont choisi de vendre conjointement leurs biens pour vous permettre de concrétiser un projet unique au coeur du Val de Camparan. Un rêve pyrénéen, dans sa version la plus pure. Vous bénéficierez d'un accès aisé au terrain d'assiette de 330 m2 portant le bâti et surtout d'un terrain agricole de 591m2 attenant avec une vue exceptionnelle, véritable atout qui ouvre la voie à l'installation d'un système d'assainissement autonome si nécessaire et sous réserve évidemment des autorisation requises. Les volumes intérieurs sont à la hauteur de l'authenticité du lieu : *Plus de 80 m2 au rez-de-chaussée divisé en deux espace d'environ 40m2 chacun sur chaque grange et facilement réunissable. *Deux greniers à foin indépendants, répartis sur deux niveaux d'environ 40 m2 chacun, Ce sont plus de 150 m2 bruts à réinventer, avec pour seul guide la nature environnante, le hameau de grange autour et votre imagination. Une partie de la toiture est en ardoises l'autre partie est en bac acier. La vue dégagée sur les montagnes, les pierres apparentes, le silence du hameau, tout ici respire la montagne d'initiés, celle qu'on ne découvre qu'en s'aventurant un peu plus loin, un peu plus haut. Ici, pas d'eau ni d'électricité en l'état : simplement la promesse d'un retour aux sources, d'un luxe rare celui de la simplicité choisie. Pour les amoureux des cimes, des projets à bâtir et des histoires à écrire, cette exclusivité signée L'Atelier IMMO est une invitation. À vos marques... prêts ? Venez découvrir ce lieu hors du temps. Nous serons heureux de vous accompagner dans cette aventure.
Prix de vente public : 162000 euros honoraires d'agence de 8,5 % inclus à la charge de l'acquéreur se ventilant comme suit : Mandat 1 : grange avec toiture bac acier et terrain agricole attenant : 78.000 euros honoraires d'agence inclus à la charge de l'acquéreur et Mandat 2 : grange toiture ardoises : 84000 euros honoraires d'agence inclus à la charge de l'acquéreur. Prix hors frais notariés, d'enregistrement et de publicité foncière. DPE : DPE VIERGE pas d'installation d'électricité. La présente annonce immobilière a été rédigée par Élodie MIR représentant l'Atelier Immo NoSIREN : 821 160 322. Agence sans détention de fonds. Les informations sur les risques auxquels ce bien est exposé sont disponibles sur le site Géorisques :www.georisques.gouv.fr
150 m²
1 080 €
591 m²
2
1
8.50 %
Contact L'atelier Immo
Contacter gratuitement à l'aide du formulaire ci-dessous.