? Opportunité Unique : Ancienne bâtisse à rénover à Sain
Saint-Malo 35400
0
Honoraires à la charge de l'acquéreur (Prix hors honoraires : 480000 euros).
Uniquement chez Cyliad Immobilier Maison à rénover avec dépendance et vaste terrain à Saint-Malo
Cyliad Immobilier vous présente cette propriété rare et pleine de potentiel, idéalement située dans un cadre verdoyant et paisible, à quelques minutes de Saint-Malo.
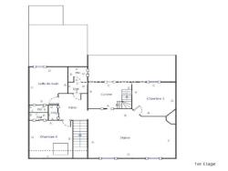
La maison principale, exposée plein sud, offre environ 95 m² habitables. Elle se compose d'une entrée donnant sur une petite salle à manger, une véranda lumineuse avec accès à une terrasse, une cuisine, une chambre de plain-pied, une buanderie, une salle d'eau et un WC. À l'étage, deux chambres en enfilade complètent cet ensemble.
Une dépendance attenante, ancienne habitation d'environ 85 m² au sol (dont 70 m² potentiellement aménageables), offre un potentiel considérable pour un projet de gîte, d'habitation indépendante ou d'atelier.
L'ensemble est implanté sur un terrain d'environ 9700 m², composé de vastes prairies et traversé par un ruisseau, créant un environnement naturel paisible et intime.
Cette propriété vous offre un cadre de vie exceptionnel, alliant le charme de la campagne et la proximité des plages et des commodités de Saint-Malo. Avec son terrain spacieux et ses nombreuses possibilités d'aménagement, elle constitue une opportunité unique.
Ne manquez pas cette chance de concrétiser vos projets dans ce lieu d'exception.
Contactez-nous dès maintenant pour organiser une visite et découvrir tout le potentiel de cette propriété !
Honoraires inclus de 4% TTC à la charge de l'acquéreur. Prix hors honoraires 480 000 . Classe énergie F, Classe climat F Logement à consommation énergétique excessive. Montant moyen estimé des dépenses annuelles d'énergie pour un usage standard, établi à partir des prix de l'énergie de l'année 2021 : entre 2260.00 et 3100.00 . Les informations sur les risques auxquels ce bien est exposé sont disponibles sur le site Géorisques : georisques.gouv.fr.
Carte pro. CPI35032022000000011. - Diagnostics Immobiliers remboursés en cas de vente effective par notre intermédiaire pour tout mandat OR contracté avant le 31/12/2025 ! - Vous connaissez une personne qui souhaite vendre ? Nous rémunérons nos apporteurs d'affaires ! CONTACTEZ-NOUS vite pour prendre RDV !
Maison ancienne
180 m²
2 773 €
19 m²
9666 m²
4
3
1
1 (séparé)
4 %
1800
Sud
Ouest
Oui
4
1
Oui
Oui
Consommations énergétiques
Logement économe
300
Logement énergivore (kWhEP/m2/an)
Émissions de gaz à effet de serre
Faible émission de GES
89
Forte émission de GES(kgeqCO2/m2/an)
Contact Abithea Côte D'émeraude
Contacter gratuitement à l'aide du formulaire ci-dessous.