-SOUS OFFRE- EXCLUSIVITÉ : PHOTOS ET VIDÉO BIENTÔT DISPONIBLES SUR NOTRE SITE WEB ET SUR INSTAGRAM @pourquoi_pas_vous_immo
POURQUOI PAS VIVRE sur le plateau de la Croix-Rousse dans un T3 avec balcon clés-en-main ?
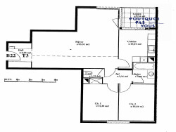
Découvrez cet appartement, agréable à vivre et fonctionnel, dans une copropriété récente de 2005.
Les + - Copropriété récente de 2005 bien entretenue - Appartement traversant SUD/NORD - Belle pièce de vie avec cuisine ouverte - Espace nuit bien séparé - Bon DPE C - Chauffage gaz individuel - Volets roulants et jalousies électriques - Balcon de 5 m² - Local vélo - Ascenseur
Possibilité d'acquérir un garage double en sus
Charges mensuelles de copropriété de 130 Taxe foncière annuelle 1 500
Un appartement prêt-à-vivre, lumineux, fonctionnel, bénéficiant d'un emplacement recherché et d'une vraie vie de quartier.
Contactez-moi pour en savoir plus et organiser une visite !
Honoraires à la charge du vendeur. Dans une copropriété de 58 lots. Aucune procédure n'est en cours. Classe énergie C, Classe climat C Montant estimé des dépenses annuelles d'énergie pour un usage standard : entre 982.00 et 1330.00 sur les années 2021, 2022 et 2023 (abonnements compris). Les informations sur les risques auxquels ce bien est exposé sont disponibles sur le site Géorisques : georisques.gouv.fr.
Votre conseiller Pourquoi Pas Vous Immobilier : Elodie MOINE Agent commercial (Entreprise individuelle). Visite virtuelle disponible sur le compte INSTAGRAM @pourquoi_pas_vous_immo