? Terrains à bâtir à Lucenay ? au c?ur des Pierres Dorées
Lucenay 69480
0
FRITSCH IMMOBILIER vous propose en exclusivité plusieurs terrains à bâtir, idéalement situés à Lucenay, l'une des communes les plus prisées du Beaujolais.
Nichée au c?ur du Pays des Pierres Dorées, Lucenay séduit par son cadre de vie authentique, ses vues dégagées sur les collines, et sa proximité avec Lyon (30 min) et Villefranche-sur-Saône (15 min).
Alliant calme résidentiel, richesse patrimoniale et qualité de vie, la commune offre un environnement exceptionnel pour construire votre future maison.
Ces terrains, libres de constructeur, conviennent parfaitement à un projet de résidence principale, secondaire ou d'investissement patrimonial.
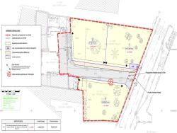
Caractéristiques principales :
? Localisation : Lucenay (Rhône), secteur résidentiel calme
? Parcelles : de 351 m² à 372 m²
? Prix : compris entre 139 000 € et 145 000 €/ parcelle
? Topographie : Terrains plats, bien exposés
? Viabilisation : Réseaux en bordure de parcelle
? Exposition : Plein sud
? Libre de constructeur
Pourquoi choisir Lucenay ?
? Un village emblématique du Beaujolais, avec ses façades en pierres dorées
? Un tissu local dynamique : écoles, commerces, vie associative
? Un environnement naturel préservé, idéal pour les familles et les amoureux de la nature
? Une excellente accessibilité à Lyon et aux grands axes autoroutiers
Les informations sur les risques auxquels ce bien est exposé sont disponibles sur le site :
www.georisques.gouv.fr
372 m²
374 €
372 m²
Contact Benjamin Val
Contacter gratuitement à l'aide du formulaire ci-dessous.