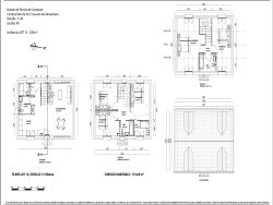
TERRAIN À BÂTIR VIABILISÉ / PLAT / IDÉAL PREMIER ACHAT / POSSIBILITÉ MAISON 120M2 AVEC 5 CHAMBRES / CONSTRUCTEUR LIBRE / RÉELLE OPPORTUNITÉNOUVEAUTÉ ET EXCLUSIVITÉ, votre agence ERA Palaiseau vous propose la vente d'un terrain à bâtir VIABILISÉ d'une surface d'environ 258m2.Situé sur la commune de VILLEBON-SUR-YVETTE, à la limite de PALAISEAU, proche de toutes les commodités (RER B, commerces et écoles), au sein d'un environnement VERDOYANT.Dans un lotissement de 15 lots (pas de copropriété), le terrain est plat, aménagé et viabilisé, il ne reste plus qu'à construire votre maison. PERMIS DE CONSTRUIRE ACCEPTÉ pour réaliser un R+1+combles d'une surface d'environ 120m2 habitable. CONSTRUCTEUR LIBRE.Pour plus d'informations et documents concernant l'achat de ce terrain à bâtir, contacter notre agence Era Palaiseau au 01 69 53 00 00.
258 m²
717 €
258 m²
Contact ERA > Nicolas ALTENBURGER
Contacter gratuitement à l'aide du formulaire ci-dessous.