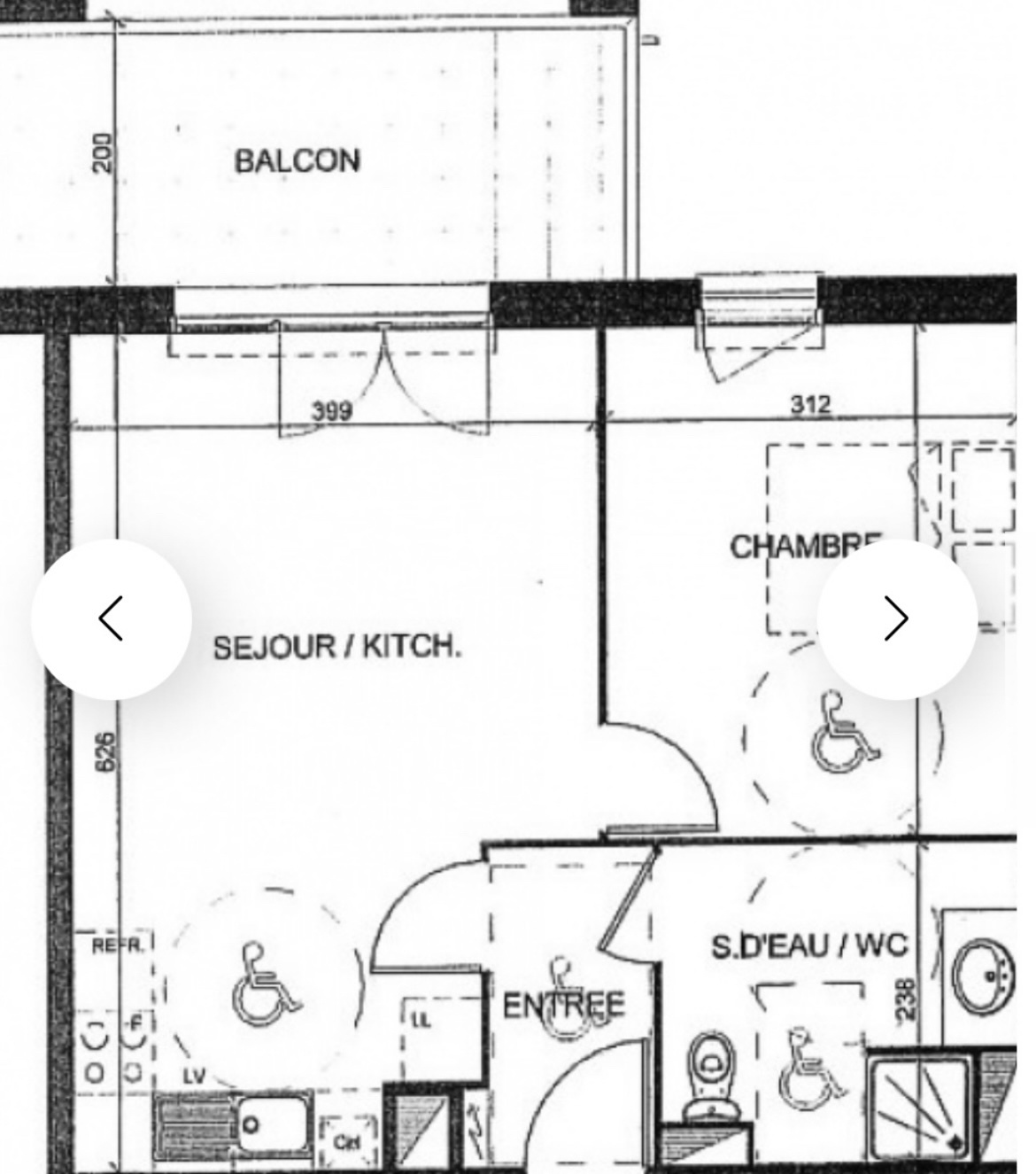
Situé au quartier Saint Etienne, cet appartement de 35 m², en bon état comprend une entrée avec placard, un séjour avec kitchenette toute équipée, un coin nuit et une salle d'eau avec WC. Dans une résidence sécurisée avec ascenseur, vous apprécierez le calme. De plus une grande terrasse avec un jardinet de 20 m² au total ainsi qu'une place de parking privative en sous-sol complètent l'ensemble. Idéalement situé à proximité des commerces et transports (TRAM BUS 1). Son potentiel locatif est un vrai plus ! Idéal investisseur? Appartement vendu loué. Ne manquez pas cette opportunité d'investissement.Bien soumis au régime de la copropriété composée de 225 lots dont 82 à usage d'habitation.Pas de procédure en cours.Les informations sur les risques auxquels ce bien est exposé sont disponibles sur le site Géorisques : www.georisques.gouv.fERA FOCH IMMOBILIER ? 6 avenue du Maréchal Foch 64100 BAYONNE Téléphone : 05 59 64 68 60Toutes nos annonces immobilières sont sur www.era-immobilier-bayonne.fr, vente, location, estimation appartement, maison , de tout bien immobilier.
35.04 m²
4 852 €
1
1
Oui
Contact ERA > VICTOR LEBRUN
Contacter gratuitement à l'aide du formulaire ci-dessous.