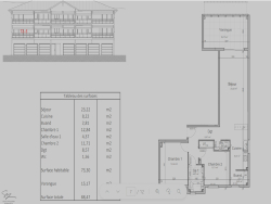
A vendre T3 avec une terrasse de 15.17 m2.Situé à Anse à l'Ane.Proche de la plage, des petits commerces et de la navette maritime.Caractéristiques de la Résidence :Type de logements : Composée de 10 logements, incluant des T2 et des T3.Sécurité : Résidence sécurisée et clôturée, avec portail électrique.Garages et caves : 7 garages et 5 caves disponibles pour les résidents.Aménagements Intérieurs :Climatisation : Chaque chambre est équipée de la climatisation pour un confort optimal.Rangements : Placard intégré dans une des chambres des T3.Cuisine :T2 : Cuisine aménagée avec meubles haut et bas, équipée de 2 feux de cuisson et d'une hotte aspirante.T3 : Cuisine aménagée avec meubles haut et bas, équipée de 3 feux de cuisson et d'une hotte aspirante.Sécurité intérieure : Interphone pour chaque logement, permettant un contrôle d'accès sécurisé.Accès sécurisé : Portillon avec digicode pour une entrée sécurisée.Atouts de la RésidenceCe programme neuf offre une excellente qualité de vie grâce à sa proximité avec la plage et les commodités locales, tout en garantissant sécurité et confort. Les aménagements intérieurs modernes et fonctionnels répondent aux besoins quotidiens des résidents, et les dispositifs de sécurité assurent une tranquillité d'esprit. La climatisation dans chaque chambre et les cuisines bien équipées ajoutent au confort et à la praticité des logements.Si vous avez besoin de plus d'informations ou si vous souhaitez visiter le site, n'hésitez pas à me le faire savoir !
73.3 m²
5 014 €
3
2
11
5
Oui (10 lots)
Contact ERA > Sandy MERLIN
Contacter gratuitement à l'aide du formulaire ci-dessous.