PROGRAMME OXANA LES TROIS ILETS : appartement de 3 pièces (88 m²) en vente
Les Trois-Îlets 97229
0
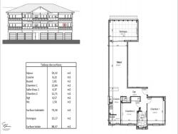
Coup de c?ur Aux Trois Îlets - Quartier Anse à l'Âne !!! Bienvenue dans la Magnifique commune des trois Îlets EN MARTINIQUE ! Commune la plus rentable de l'île pour les investisseurs. Nous vous présentons un Super Appartement T3, Lots n?5 d'un immeuble de 10 appartements, offrant un cadre de vie idyllique entre plage magnifique et restaurants réputés. Caractéristiques Appartement: 2 Grandes chambres, une terrasse, une place de parking + un garage. Cet immeuble est conçu pour allier qualité de vie, confort et esthétisme. Vous y trouverez une Constructions modernes avec des Matériaux de qualité et des finitions soignées, Un balcons spacieux pour profiter du climat tropical et ensoleillé de l'île. Vous aurez également un accès privilégié et facile pour rejoindre vos différentes activités nautiques, randonnées et découvertes culturelles. Des écoles de tout niveau sont à votre portée en moins de 5min de trajets. D'autres Lots tel que des T2 sont aussi disponibles dans cet immeuble. Ne manquez pas cette opportunité d'investir ou d'habiter dans un bien d'exception en Martinique. Pour plus d'informations ou pour planifier une visite, n'hésitez pas à nous contacter ! Prenez rapidement contact avec votre agent commercial KW: EMILE Jordi E.I Par téléphone : [0696540601] Par mail : [jordi.emile@kwfrance.com] RSAC 983 752 460. Les informations sur les risques auxquels ce bien est exposés sont disponibles sur le site: www.georisques.gouv.fr
88 m²
4 176 €
3
2
1
Contact Jordi EMILE
Contacter gratuitement à l'aide du formulaire ci-dessous.