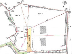
[ GRAND TERRAIN ARBORÉ ]À l'entrée du village de Taïx, avec vue sur l'Église, proche des commodités de Cagnac-les-Mines et à moins de 10 minutes du retail parc de Lescure, terrain à vendre.Cette belle parcelle arborée vous accueille au sein d'un village tranquille et au calme. Ce terrain est quasiment plat sur une grande superficie et permet de construire une maison de plain-pied. Ce terrain peut être divisé si vous n'avez pas besoin de toute la superficie.Les alimentations en électricité et Télécom sont posées. L'eau se trouve en bordure. Un assainissement autonome sera à prévoir. Pour plus d'informations, contactez notre agence immobilière !
L'Etat des Risques et Pollution peut être consulté sur https://www.georisques.gouv.fr
2983 m²
15 €
2983 m²
Contact ERA > Marjolaine TEULIERE
Contacter gratuitement à l'aide du formulaire ci-dessous.