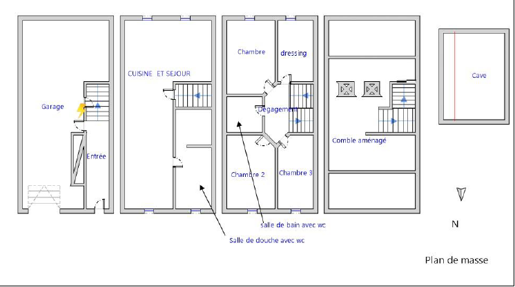
A VENDRE 83170 TOURVES MAISON DE VILLAGE TYPE 5 DE 120 M² AVEC LOCAL COMMERCIALEXCLUSIVISTE ERA IDEAL PROPERTIES , nous vous proposons à la vente cette maison de ville au centre historique du village. Rénové avec gout elle offre un espace de vie au première étage, avec cuisine salon et WC. Au deuxième étage deux grandes chambres, une salle d'eau et un wc. Au troisième étage une chambre en duplex , une seconde de plus de 11m² un coin cuisine et un coin salle d'eau. idéal grande famille, cette maison vous apportera l espace nécessaire a une vie épanouie. En extérieur un local commercial avec four a pain, grande cave pouvant être démembré du lot.Prix : 265 000? honoraires charge vendeur POUR TOUT MANDAT UNIQUE VOTRE AGENCE ERA DL IMMOBILIER VOUS PRETE UN CAMION DE DEMENAGEMENT.Votre agence ERA IDEAL PROPERTIES EST DE RETOUR SUR SAINT MAXIMIN LA SAINTE BAUME .NOUS RECRUTONS N'HESITEZ PAS A VENIR NOUS RENCONTRER POUR CHANGER DE VIE!
120 m²
2 208 €
5
4
Contact ERA > Sébastien BENNARDO
Contacter gratuitement à l'aide du formulaire ci-dessous.