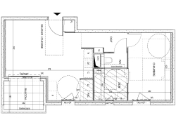
Idéalement placé dans le centre de Saint didier au Mont d'Or, ce T2 de 44,06m² est composé d'une entrée, d'un séjour avec cuisine ouverte sur un balcon de 5,16m² , d'une chambre, une salle de bain et un Wc. L'appartement est vendu avec un garage en sous-sol. Pour tout renseignement, vous pouvez me contacter, Je serai ravi d'échanger et vous aider à concrétiser votre beau projet Bâtiment basse consommation, faibles charges Visuel non contractuel Merci de contacter votre conseiller Grégory pour plus d'informations Copropriété de 15 lots - dont 15 lots habitation. Charges annuelles : 700 euros.